查看完整案例

收藏

下载

翻译
Architects:Llano Arquitectos
Area :187 m²
Year :2017
Photographs :Alejandro Arango
Lead Architect :Juan Camilo Llano Correa, Carlos Andrés Holguín
Construction : Jaime Gaviria, Escala Urbana
Structural Engineering : Carlos Alberto Betancur, Péndulo ingeniería
Design Team : Juan Manuel Portillo, Tomas Villa
City : La Estrella
Country : Colombia
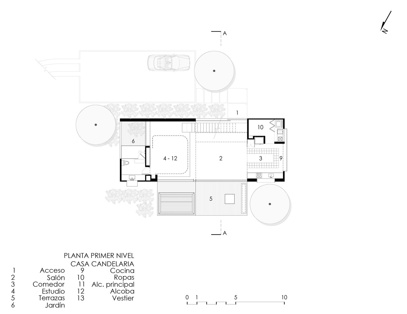
This house is located in the upper part of a subdivision in the municipality of La Estrella, Antioquia. This is a small parallelepiped, in order to preserve natural and permeable light, reinforces the idea of an isolated pavilion that tries to dissolve the limits with the exterior and the occasion of the invitation to contemplate the surrounding landscape.
This pavilion of glazed metal structure has two horizontal floors intercepted by a vacuum, towards which the spaces of the house are turned.
The main bedroom acquires a dominant character over the interior space due to the absence of walls. A small metal structure bridge that crosses the central void connects the bedroom with a kind of covered terrace that dominates the surrounding natural landscape. The terrace becomes the extension of the main bedroom and also a space for contemplation.
▼项目更多图片
客服
消息
收藏
下载
最近






























