查看完整案例


收藏

下载

翻译
Architects:Nick Willson Architects
Area :320 m²
Year :2016
Photographs :Nick Gutteridge
Manufacturers : Metsa Woods, INTERNORM, IbstockMetsa Woods
Engineers : Davies Maguire Engineers
Architect In Charge : Nick Willson, Rosa Aragon
City : Horsham
Country : United States
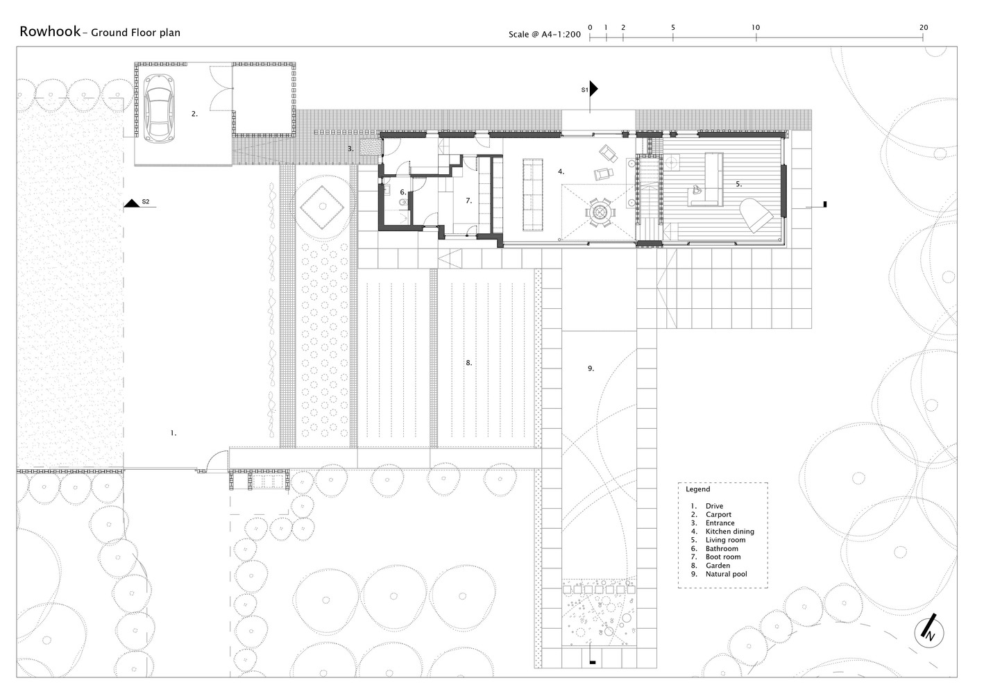
Conceptually, the house is designed as having a northern red brick wall spine which runs from the car port at the top of the site down to the terrace next to the copse towards the East of the site.
This wall is then punctuated with varying sized openings and seats internally. The brick is exposed internally in certain areas, giving the house a textural and warm feeling.
In plan the wall is two L shaped elements that mirror each other, the first forming the entrance and car port and the second the chimney and living space wall. The double height space forms the break between the two elements and opens the view to both sides.
The wall represents the brick walled gardens in traditional English gardens. To manipulate with the wall further we have proposed a varied palette of brick work, from flemish bond, to hit and miss and herringbone bond. The thickness of the wall allows for shadow, and texture along the length as well as high insulation levels.
As a foil to this more solid element, the southern facades of the house are more glazed and timber clad. The timber being a mixture of 50 mm sawn timber cladding and planed for doors and vents. A series of timber louvres shade the Western sun and provide privacy for the bedrooms.
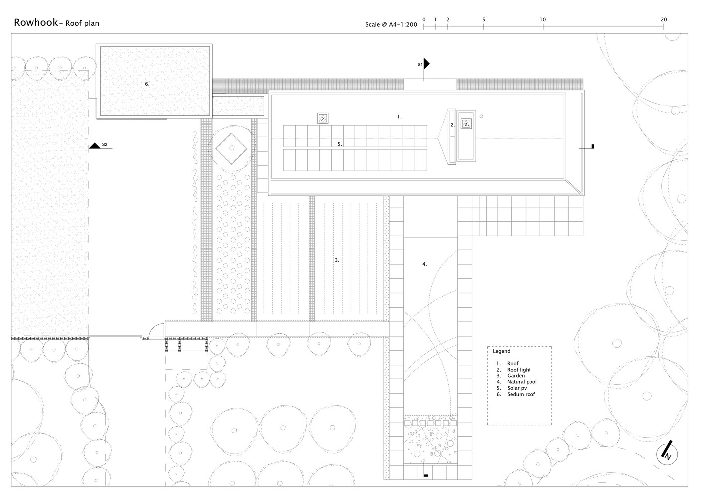
A sloping roof sits above the timber, brick and glazed elements separated from the brick spine with high level glazing, which affords views of the mature trees to the North. The roof will have a copper soffit externally which will shimmer in the sun. A sedum finish to the top will help with bio-diversity.
The journey and narrative of the house and site starts at the new entrance with a sloping driveway down to the car port. Hedges and flowers shield the house for privacy and offer a level of surprise once in the house. The car port is open to reduce its mass and also houses a log store and cycle, bin store. Here the red brick spine wall wraps around the functions with the use of hit and miss brick work. The timber roof then floats over to the top continuing to the house as a covered entrance way. Vertical timber screens allow for planting to grow along the entrance path. At this point there is a change in level and a small opening through the brick screen into the Northern garden and meadow.
The entrance is expressed via a large metal clad front door. Once through the door, there is an entrance hall with brick flooring and coat cupboard, bench. A W.C and shower is off to the right. At this point the view is directed down the spine wall which terraces down with storage and gallery along the way and a single window seat framing a view of the large trees to the North.
The view at the end of the gallery is centred on the fireplace. The wet, utility, plant spaces are concealed behind the gallery wall, housing the boilers, solar thermal tanks and boot room.
At the bottom of the gallery the level changes subtly and the double height dining room opens up with a view to both sides of the site, this space will be flooded with natural light and a contrast to the lower darker entrance sequence.
The double height space is framed by the brick chimney and fireplace. The brick will be herringbone which mirrors that of the entrance floor. The chimney starts the second part of the brick spine and also shifts the circulation and entrance to the more private living space to the front of the house.
The chimney also houses the staircase to the first floor with a light well above. A change of level through the chimney leads to the living space which has a corner view of the copse and landscaping. A window seat allows views to the North. In addition the living room wall is exposed brick which continues outside to form a low garden wall to the Eastern terrace.
At first floor, the building has the more private master suite to the East above the living space, and the guest, children’s bedrooms/bathrooms to the West. The two sides are linked with a library and link bridge which overlooks the double height space. A flexible study also looks over the double height void space creating a vertical connection to the dining family spaces below.
Sustainability was an intrinsic driver for the design, form and location of the house. We designed the house from a fabric first principle and using the orientation to maximize the energy from the sun along with thermal mass. The double height space collects the suns energy and a large chimney acts as a thermal store and thermal vent for summer months with a stack effect being created.
A highly insulated and airtight fabric with triple glazed windows ensures that heat cannot escape but also so that the house does not over heat. MVHR with heat recovery moderates the air quality and temperature.
Timber louvres and a large overhang at roof level provide passive shading for summer sun but allow winter sun to flood the house in winter. All materials are sustainably sourced and the timber is all FSC rated. The insulation is a sheep’s wool.
Water usage has been carefully considered, with the use of suds, surface and rain water collection for irrigation, and a treatment plant that deals with waste with the cleaned water allowed to run into an adjacent soak away. Low flush fittings are used throughout and there is only one bath in the house.
Heat and hot water is provided by an air source heat pump, a log burner and under floor heating. Although the Client tells us that she hardly has the heating on during the colder months.
Other renewables are PV panels on the roof to provide electricity and smart meters with a holistic lighting and heating control controlled by an iPad.
The house also seeks to enhance the surroundings with sedum roofs, new extensive landscaping, wild meadow and woodland management plans for the copse, along with a bespoke bat hotel that we designed in the chimney and owl boxes in the trees.
▼项目更多图片
客服
消息
收藏
下载
最近







































