查看完整案例

收藏

下载

翻译
Architects:ZHOU Ling Design Studio
Area :11910 m²
Year :2015
Photographs :Hou Bowen
Design Team : WU Shijia, YANG Hai, Wang Sujing,ZOU Feng, ZHANG Ru,Li Hongrui, Chen Tingting
Design Studio : School of Architecture And Urban Planning, Nanjing University /Atelier Zhouling
Principal Architect : ZHOU Ling
City : Nanjing
Country : China
The primary school form resembles a cube along with the slope, such as a stone cross-wall embedded in slopes.
In order to make the building appear lower, the original three-layer buildings look like only two layers high, which helps create intimate visual experience for children and reduce the pressure of the volume.
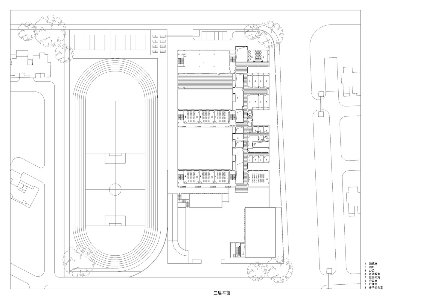
This design paid full attention to the creature of public space. An 8-meter-wide north-south corridor runs through the building is an inner street-style pathway inside of the building, which provides two-story high public communication space for children.
Through linking teaching space with 25-meter distance in the west and serving space with lower requirements in the east, ‘the inner street’ makes the building a whole part. This layout, both conducive to the partition, the function does not interfere with each other, but also to streamline the shortest, each part of the users can easily reach the mostly used regions.
Due to the highway in the east and north side, the design minimized windows in the east and north facade in order to create a quiet environment. To increase th lighting, the architect inserted a variety of large and small courtyard in-between rooms, which constitute interactive small communities for teachers and students together.
▼项目更多图片
客服
消息
收藏
下载
最近





































