查看完整案例

收藏

下载

翻译
Architects:Shinsuke Fujii Architects
Area :75 m²
Year :2015
Photographs :Tsukui Teruaki
Architect In Charge : Shinsuke Fujii
City : Yokohama
Country : Japan
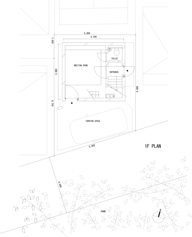
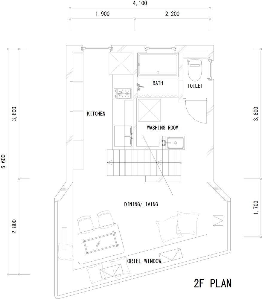
On a site area of only 42m2, We planned a housing with a horizontally long bay window (not included in the floor area) towards a park where you can see cherry blossoms.
Three layers of bay windows were set up to take in the scenery and light inside the building and it became a building that feels open.
Besides being able to effectively utilize the space by using the bay windows as a work desk and dining bench, it also functions as an eaves, making shadows in summer and delivering sunlight to the back in winter and warming the concrete floor.
At the lower part of the bay window, small windows can be provided to obtain constant ventilation even on a rainy day. It is also used to water the flowers between bay windows.
In addition, the hanging walls and waist walls at the upper and lower sides of the bay window function structurally as cantilevered beams, ensuring a frameless opening for capturing outdoor environments such as cherry blossoms and autumn leaves on all floors.
▼项目更多图片
客服
消息
收藏
下载
最近



















