查看完整案例

收藏

下载

翻译
Architects:The Brick Tales
Area :2420 ft²
Year :2022
Photographs :Noaidwin Sttudio
Design Team : Rini Gandhi, Keval Jain
Structural Consultant : Anil Patel
City : Surat
Country : India
The client’s brief was they wanted a simple structure where one could feel connected to nature away from the hustle and dense fabric of the city. We aspired to achieve a cost-effective use of natural materials in their most simplistic nature. The house is constructed through a combined structural system; with load-bearing stone walls and an external frame structure in steel with a butterfly roof.
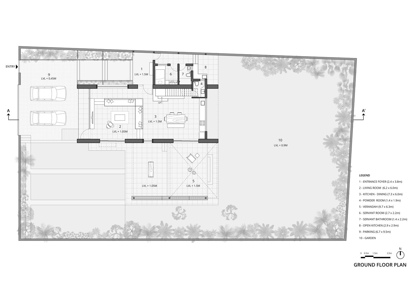
Two parallel stone walls oriented in an east-west direction form the body of the house, functioning as the main load-bearing structural element of the house. We have used black trap Deccan stone, a type of Basalt stone which is a very hard stone sourced from nearby. It is very difficult to achieve finished masonry with this stone. This gave the desired raw, uneven, and rough character to the walls. The stone was used to give a very robust, natural, tactile experience of being inside a cave. The use of these thick 18 inches of stone walls also helps thermally to keep the interiors cooler during hot climates.
At both the ends of these walls, glass windows were placed which gave spectacular views of the sunrise and sunset. The house was placed on the front side of the plot leaving open space behind for an introverted private garden space. On the ground floor, these stone walls house the living, dining, and kitchen spaces flowing into each other. A light metal structure intersects this mass of stone walls in a perpendicular direction. We wanted to have large outdoor spaces which provided necessary shelter such that one could comfortably sit outdoors. We used steel structure for this to have a very sleek structure that could literally blend with the landscape and allow one to enjoy uninterrupted views on all sides.
This binary relationship between the raw stone and the crisp and precise metal gives a very interesting experience. As one goes on the first floor, a very light metal structure with a glass enclosure and butterfly roof floats above strong, heavy stone walls. The light steel structure that supports the roof with glazing on all sides, signifies a pavilion that sits on the masonry walls. The roof almost disappears into the sky and gives vast open views from both sides. This gives a nomadic character to the building, which is otherwise strongly anchored to the ground. This also reduces the perceived solid vertical mass of the building, which would have otherwise made it look taller and bigger and not humane to inhabit. So the idea was to achieve a house that keeps one grounded and close to nature in terms of its scale and not something too monumental overpowering the landscape.
The terraces and balconies coming out of this solid mass render views in different directions to be able to give different and exciting outdoor experiences and not become too mundane. The way in which the relationship between inside and outside has been molded makes the house a very lively and unique space. On the first floor, sliding wooden partitions are used to enclose the bedroom, which can be opened and combined with the lounge to function as a huge gathering space with open terraces on both sides. The use of natural materials gives it a very timeless character. Wooden furniture has been used for the interiors to make the narrative and experience even stronger. Metal staircases clad with wood are cantilevered from the stone walls. Exposed raw concrete ceilings and walls form the design language of this raw abode.
▼项目更多图片
客服
消息
收藏
下载
最近




























