查看完整案例

收藏

下载

翻译
Architects:Tudor Vlāsceanu Architect
Year :2022
City : Logroño
Country : Spain
Architecture has the power to define the way we comprehend and relate to our environment. The built form generates a world in itself and each time, it installs a new system of reference that allows us to extract, make sense of, and experience fragments of our reality.
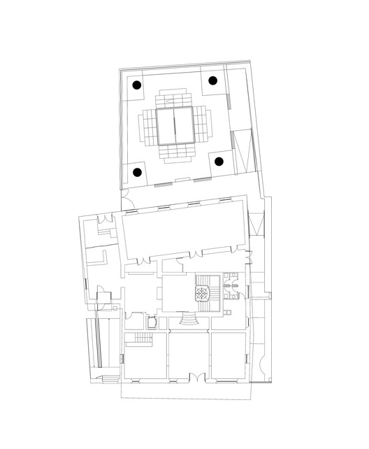
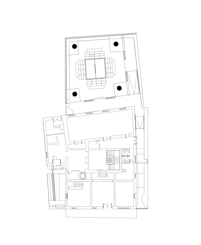
House with 4 Palms sits in the middle of the garden COAR. It fills up the empty space of the Garden with an unusual volume. From afar, the massive, mostly opaque, almost symmetric, dark object is autonomous. It is an ideal object. Its character is unperturbed and mysterious.
From inside, a new dimension is revealed. The space is defined by four large planes leaning on each other inwardly. The structure assists this fragile equilibrium. The interior feels compressed by the exterior. You can feel an act of resistance, from which space emerges and with it, a different reading of reality.
The space opens up only towards the 4 Palms and the sky. These living fragments of context are weaved and bound together, essentially informing the experience of the interior space. While from the inside the object explains itself, it is from here that an abstracted new exterior appears, causing us to imagine.
A deliberate exception, the only element that breaks this self-referential device is the half-circle opening towards the North. This window follows a different formal vocabulary, resonating to a different, yet higher or not necessarily known order.
▼项目更多图片
客服
消息
收藏
下载
最近














