查看完整案例

收藏

下载

翻译
Architects:Finorm Studio
Area :440 ft²
Year :2021
Photographs :Anson Ho
Lead Designer : Max Chan
Branding Design : Burton Li
Country : Hong Kong (SAR)
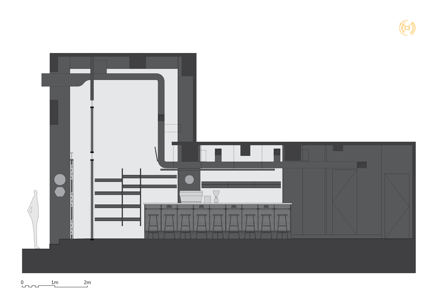
Located at the corner of a 60s building in the Kau U Fong neighbourhood, Dio offers artisan cuppa by day and curated wine and spirits at night. The design brief asked for a retail-driven space with coinciding functions of a cafe and a bar. The add-on structure on the facade and interior was stripped down to its original state, characteristically revealing the scars left behind from the demolition. The facade was left unfinished on purpose, embracing the imperfection and manifests the transience nature of the commercial occupancy.
The imperfect white wall was framed by the building’s pink paint and the grey finish next door. We employed these two colours in the design of the brandmark as a tribute to the context at the time of its existence. Situated on a narrow sloping street, the new shopfront was a setback to allow a buffer for passersby to linger and be curious about what Dio offers on the overhead menu.
The setback zone lets customers stay and interact with the city while having a drink. We built a promotional display stand / high table that faces the entrance of the hip Gough Street, a picturesque spot welcomed by most photographers and bloggers. The shopfront glass doors can be completely opened up as an extension of the street receiving diners and shoppers nearby. The interior surfaces are a series of strategically toned greys that function as the container of the products, customers, and the programmes. Each shade of grey performs its specific tasks.
The lighter greys in the walls and bar counter bring forward the wine bottles and served beverages, while the darker ones subside and disappear. The LED strips on the shelves draw attention to the very end of the shop. Its diffused light illuminates products and casts intricate yet subtle shadows through the panels. We used magnetic tracks to allow flexibility. The combination of magnetic anti-glare downlights and spotlights attached to the tracks can be rearranged anytime. This is designed specifically for the store operators to plug and unplug whenever needed. Hence space always remains pliable to the people.
▼项目更多图片
客服
消息
收藏
下载
最近





















