查看完整案例

收藏

下载

翻译
Architects:Etsi Architects
Area :250 m²
Year :2021
Photographs :Julia Klimi, Panagiotis Voumvakis
Manufacturers : Geberit, Secco Sistemi, Fermob, Hatria, Ikea, Menu, THPG, Bosch, Epiplo Deco, Fisher and Paykel, KAFKAS, Kartell, Kastri, Kerasan, Lafuma mobilier, Media Strom, Neve Rubinetterie, New plan, Nordlux, Slide, +2Superinox, Tse-tse-2Geberit
Design : Eleni Tsigarida, Vangelis Sideris
Consultant : Efi Delinikola
Structural Engineer : Paris Kamarinakis
Planting Designer : Dawn Harney
City : Kardamili
Country : Greece
We were struck by our clients’ unflinching belief in their vision and destiny when they imagined the Teloneio as their second home. They recognized the potential for restoration instantly, while also seeing themselves as custodians of an important historical monument.
Following distrust from locals about the private restoration of Kardamyli’s landmark and a long approval process, we collaborated with a team of experts over eight years to bring the Teloneio back to life and give it a new purpose.
The Brief. Our task was to turn a listed historical building into a modern family home, while simultaneously respecting its place in the local landscape, history, and community.
Its location in the port of Kardamyli since the 18th century makes the Teloneio a focal point for the area and we wanted to honor that. After briefly being resurrected as a motel in the 1960s, it had been partially buried in concrete and fallen into disrepair, giving us the perfect opportunity to reimagine it as a home while preserving it for the future.
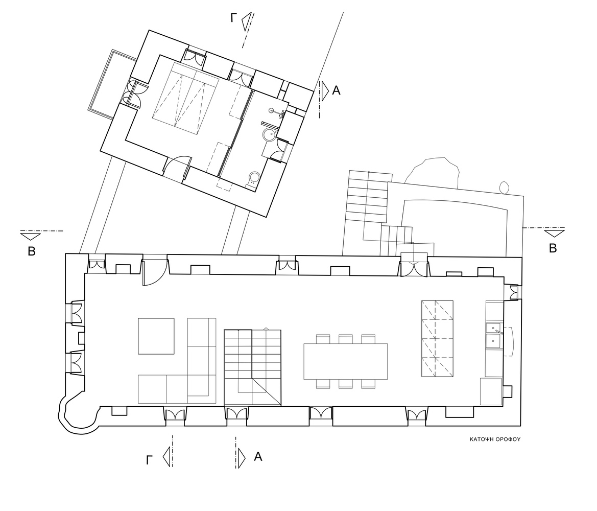
The Challenge. Because of its role as a fortified customs house, the Teloneio was originally designed for protection, with goods storage on the lower floor and defensive barracks space above. We needed to open up and connect spaces across both floors in both buildings, adding features to make it feel like a home. Our challenge centered on three main areas:
Restoration. We revealed the stunning 18th-century stonework, turning short squat buildings into tall slender ones by careful excavation from the surrounding concrete. We then restored the shell in keeping with the original fortified Mani architecture. We also restored the roofs and added keyhole windows in the lower floors to add light and air and make them liveable.
Connected space, We wanted our clients to be able to move freely within and between spaces. Until this point, although the two buildings were attractively offset with a sheltered courtyard between them, all rooms had separate access from the outside. We connected the rooms within each building, added a staircase with a bold cut of the main vault, created access to the outdoors on the south side, and linked the two buildings together.
Materials. We see ourselves as ‘progressive regressionists’ and the Teloneio as an example of what can be achieved when experts collaborate in a regenerative building. We used local materials including marble floors from the Itilo quarry, olive wood furniture and veneers, and local pebbles for the entrance mosaic, employing traditional techniques for the pointing and repairs.
The Design Solution. We achieved what we set out for: a state-of-the-art historical restoration and an elegant second home that maximizes the sea views, with a flow between internal and external spaces. Four bedrooms, an office and three bathrooms across two buildings, and an open plan kitchen/dining/living area for a modern family to enjoy.
The project also transformed the local community, overcoming reservations about restoring a beloved landmark and becoming a visitor attraction. It went above and beyond what we and our clients hoped for.
▼项目更多图片
客服
消息
收藏
下载
最近











































