查看完整案例

收藏

下载

翻译
Architects:Pontual Arquitetos, Porto Neves Arquitetura
Area :416 m²
Year :2021
Photographs :Walter Dias
Manufacturers : Sherwin-Williams, FLORENSE - PE, Itlica Casa, Light Design, Sierra Mveis, TIDELI OUTDOOR LIVING , Uniflex, VIDRO & CIASherwin-Williams
Lead Architects :Adriana Porto e Luciana Neves
Architecture : Pontual Arquitetos
Interior Design : Porto Neves Arquitetura
Collaborators : Sofia Cavalcanti, Daniela Albuquerque, Jaqueline Miranda
Collaborating Interns : Rebeca Santoianni, Isabelly Sales, Mariana Piquet, Simon Presbiteriano
Electric Installations : Fernanda Falcão
Landscape : Villa Garden - Luciano Lacerda
Finishes : Itamar José
Contractor : Anjos Barbosa Construções - Clodoaldo de Vasconcelos Barbosa and Marcos Antônio Neto
Country : Brazil
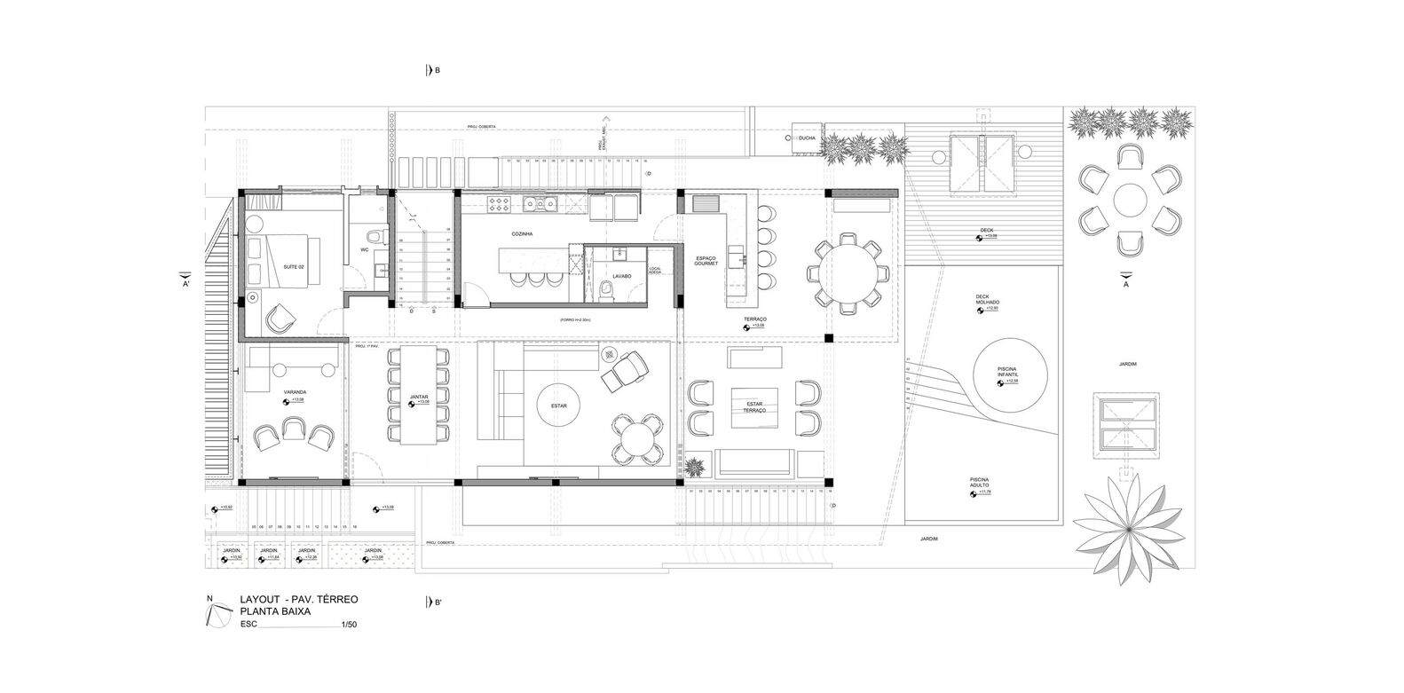
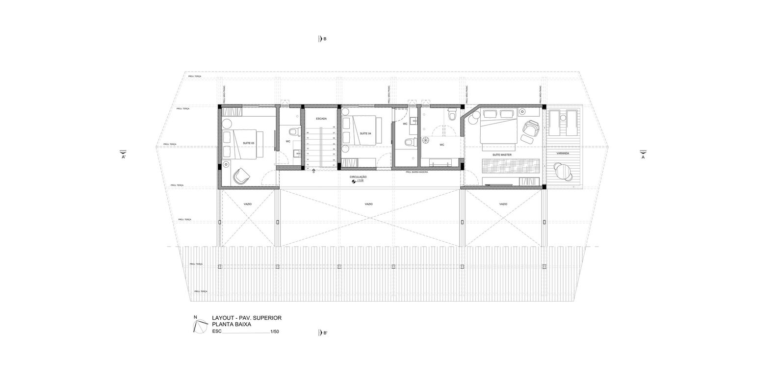
The Rest house is located at Muro Alto Beach, on the Coast of Pernambuco, the architecture Project is signed by Pontual Arquitetos and the interior design is signed by PORTO NEVES arquitetura.
In this project, our office had a participation that extrapolates the scope of common interior projects, coming up with the creation of new spaces, like the SPA area and steam room, besides the redrawing of the pool and developing of constructive details for the stairs, internal frames and glass railing. The concept was guided in a way that we could keep the excellence of the materials and furniture listed, without losing, at the same time, the essence of a beach house: keeping the proposition of a laid-back place and with a humble aspect, that refers to rest and relaxation.
The development of the interior design maintained the respect for the original architecture of the house, it was produced, for example, wood panels that incorporate the kitchen and toilet doors, in the same way, that it's done with the glass railing, with design solutions that were thought in a way that the furniture and wood ceiling, which is a big inclined roof that provides the double right foot with indirect illumination, was enhanced.
The garden valuation was also an inflection point in our project, especially in the Spa area, in which was created a sided garden, in a way that incorporates the green area with the construction and integrates the spa rooms and guest bedrooms that exist on this floor. To finish the rooms were selected natural materials, such as wood, stone, and natural bricks (this last one utilized on the main wall of the living room, is from the Adobe line Colormix), or that reminds the natural textures, for example, the Portobello Barcelona Cristal porcelain, that reminds the sand aspect and the Cottage Canelle, that have similarities with a washed white wood.
In this case, the house owner is also an art enthusiast, owning a big collection of pieces from the following artists: Francisco Brennand, Conchita Brennand, Abelardo da Hora, Domingos Tórtora e Studio Alva. So, to compose the rooms, we decided by the mix bettween the works of art from the named artists with the production from local artisans: Suely Brasileiro (PE), instalada no hall de entrada do térreo; mestre DIM de Juazeiro do Norte (BH) e vasos de Neguinha (Belo Jardim - PE).
It was intended that guests and residents could notice the quality of finishings, furniture, ilumination and objects selected to be a part of the house, at the sime time that its ambients be confortable and welcoming to its many uses.
▼项目更多图片
客服
消息
收藏
下载
最近







































