查看完整案例


收藏

下载

翻译
Architects:atakarchitekti
Area :1247 m²
Year :2021
Photographs :Tomáš Souček
Collaboration : Jana Janďourková Medlíková
Client : Liberec - Vratislavice nad Nisou
Volume : 6446 m3
City : Vratislavice nad Nisou
Country : Czech Republic
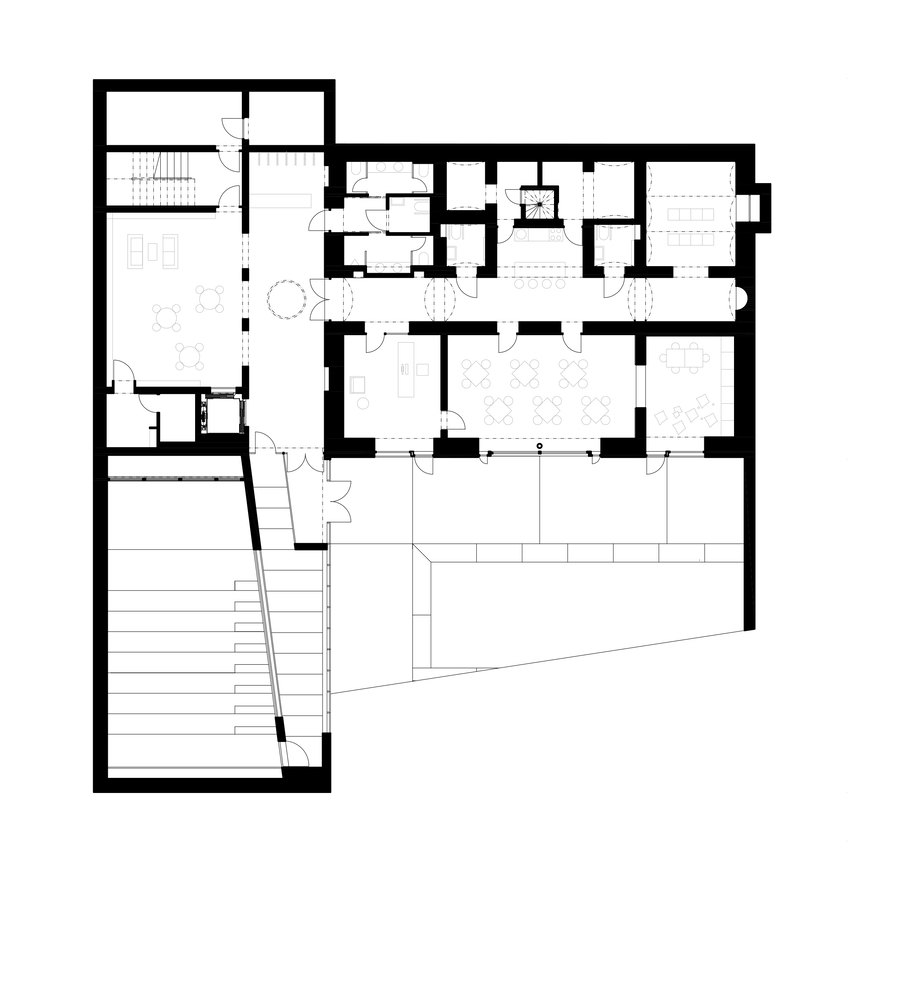
A suitable place for the new town library was the unused house of the Roman Catholic rectory, which in the past was also used as an orphanage, kindergarten, and vocational school. In addition to the library, the municipality intended to place a multifunctional hall, facilities for clubs, and a maternity center in the house. The former rectory could not accommodate all the functions, so it was decided to extend the building with an extension.
The idea of the design is to create a new public place that will connect to the existing vibrant center of Vratislavice, defined by public buildings and the château garden. A new Piazzetta is being created, inspired by the rhythm of small squares in the vicinity of the public buildings. The original character of the old house has been retained – its deep foundations have allowed for a semi-recessed floor to be created by weighing off the ground. The excavation allowed daylight in through generous portals and the excavated pit formed the base of the new plaza. The ground floor has been given over to clubs and the upper floor to the children's library.
On the west side, the rectory is complemented by the contemporary-styled library structure. Both buildings are connected in the basement and also by a bridge on the first floor. Its size, shape, and location are based on the context of the château garden and the rectory, as well as the tree protection zones and infrastructure network lines. The result is a building with a narrow, compact three-story upper part and a two-story basement.
The library is integrated into the above-ground floors of the extension, whose open space principle accommodates a reception area with a terrace on the ground floor, a first-floor gallery, and a reading room under an arched roof. The underground floors house a multifunctional hall with a small lobby and a cloakroom in a vestibule linking the two buildings, creating a common entrance area.
The structural system of the former rectory is made of brick masonry walls with wooden beamed ceilings. The timber trusses support a mansard roof – unfortunately, the wooden structures showed considerable signs of degradation due to high humidity and woodworm. Thus, contrary to original assumptions, no timber structures could be retained and the timber ceilings and trusses had to be removed. The deep granite block foundations, after stripping the ground and concreting and stacking the vaults, gave rise to another usable floor, which was professionally rehabilitated after being uncovered.
The new internal linings are made of burnt bricks, the ceiling structures are made of monolithic reinforced concrete or steel ceiling beams bonded with sheet concrete and trapezoidal sheet metal. The roof truss is replaced with a new carpentry structure that fully matches the original roof shape and is covered with natural slate templates. The building has two new internal staircases – the lower one is a steel spiral staircase with wrought metal spindles, and the upper one is a four-arm staircase made of reinforced concrete monolithic plates.
While the internal layout of the house must have been significantly affected, the building envelope has been preserved almost unaltered. Insensitive deposits have been removed from the facades and, after insulation, they have been restored with historic features and details, brizolite plaster, wooden doors, and copies of the casement windows.
▼项目更多图片
客服
消息
收藏
下载
最近





























