查看完整案例


收藏

下载

翻译
Architects:Estudio STGO
Area :165 m²
Year :2021
Lead Architect :Francisco Pomar, Lisandro Lopez
Collaborators : Andres Acosta, Javier Carmona
Construction Company : LT Desarrollos
City : Funes
Country : Argentina
The lot, located in a wooded area within the city of Funes, hosts several old constructions, a pool and a house from the 1960s, which was demolished to make way for the needs of its owners.
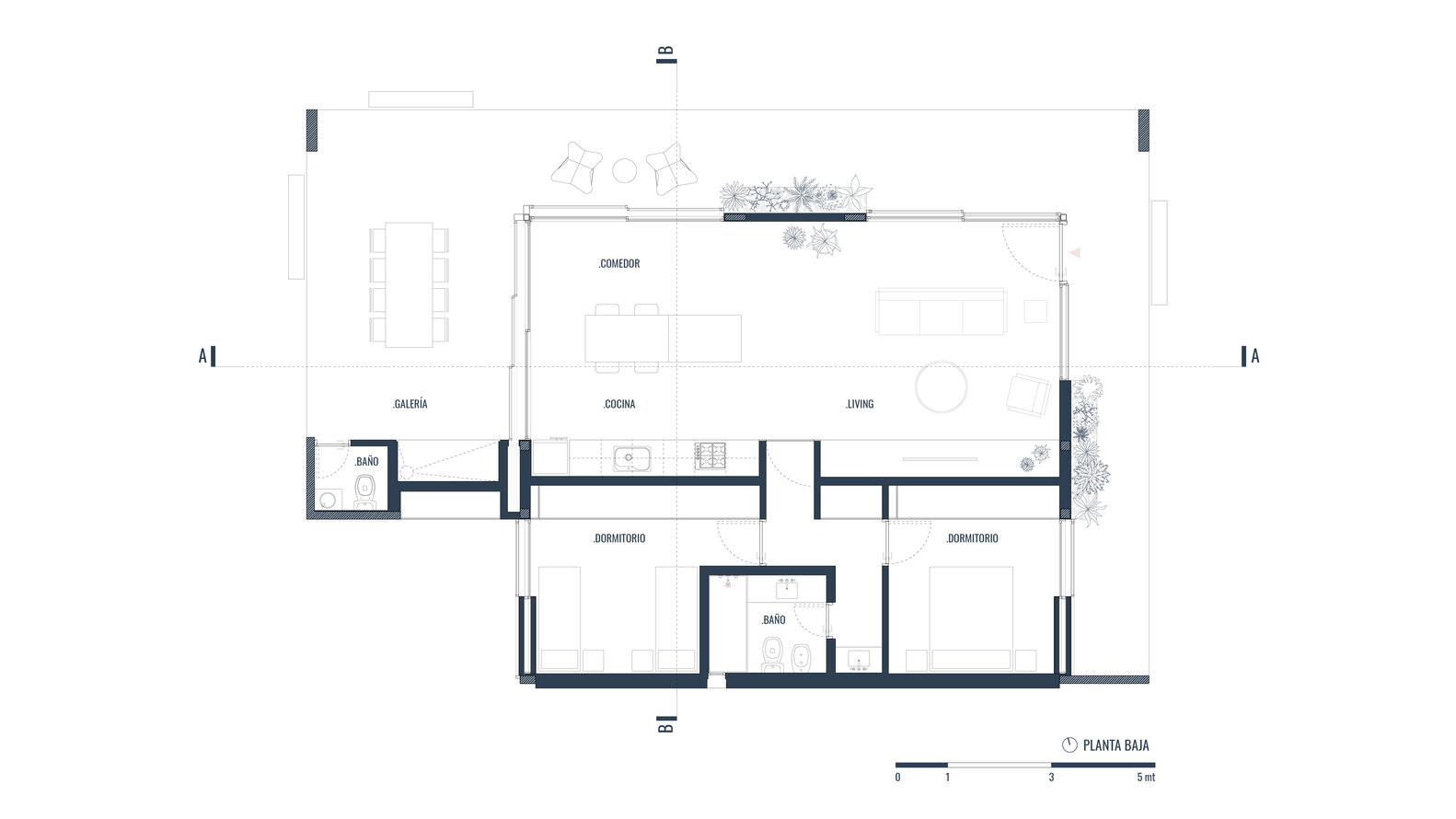
The project solves the program of a relaxed weekend house without the complexity of a traditional house, accommodating the different members of the family. This house will no be in use during the week and in the winter season.
Based on these premises, the aim is to generate a very close relationship between the inhabitants and the environment. For this the house is located in the center of the lot, without affecting any existing trees and making the most of the visuals and the north orientation of the lot.
The volume is made up of a bare concrete structure that contains the required program. Large galleries are generated with glazed panels on the perimeter allowing sunlight to enter when the sun is low and limiting the amount of light in the summer when the sun is at its maximum height. In this way, intimate spaces become contained and private and the social spaces remain in closer relationship with the exterior.
The metal lattice was used as a compositional and aesthetic element of the house. Since the house remains uninhabited for long stretches of time, it was necessary for sunlight to be able to enter and to allow ventilation if necessary, also when the house is closed.
The photographic report was made at different times of the year, to show how the house changes according to the position of the sun.
▼项目更多图片
客服
消息
收藏
下载
最近





























