查看完整案例

收藏

下载

翻译
Architects:Lucie Nemcova
Area :2115 m²
Year :2021
Photographs :Václav Novák
Manufacturers : Sto, Boen, Harlequin, Rako, Schco, Atepaa, Dulux, Ecophon, Ego, HERAKLITH, PerfolineaSto
Lead Architect :Ing. arch. Lucie Němcová
Structural Engineer :ANTRE, Ing. Karel Šíp
Collaboration : Studio ANTA, Ing. arch. Karel Scheib (The Land Planning Procedure Documentation)
Landscape Architect : Ing. arch. Alice Boušková
Building Graphic Designer : Petr Kněžek
City : Praha 6
Country : Czech Republic
The investor’s close ties to dance and to the locality gave rise to a project that has breathed new life into a retail building set within a 1960s housing estate. As part of the transformation, a dance studio was built on the upper floors above the street-level shops and offices.
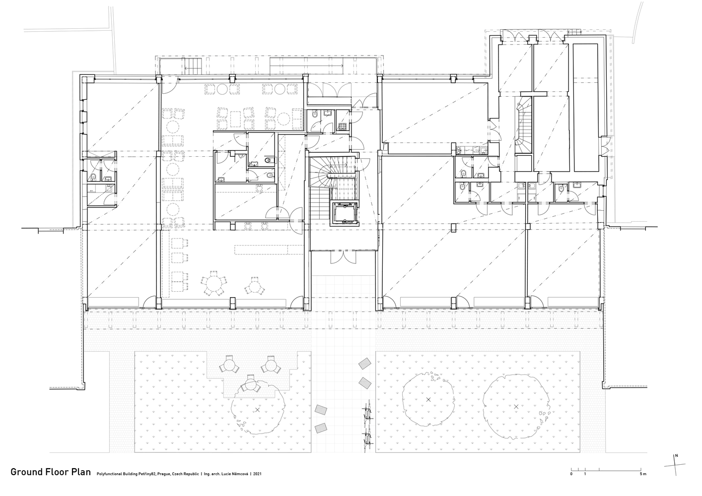
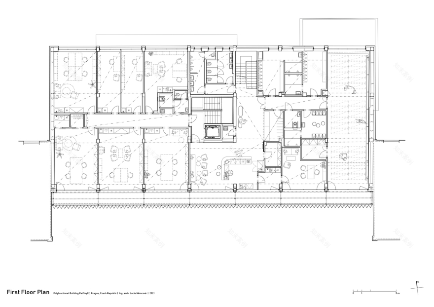
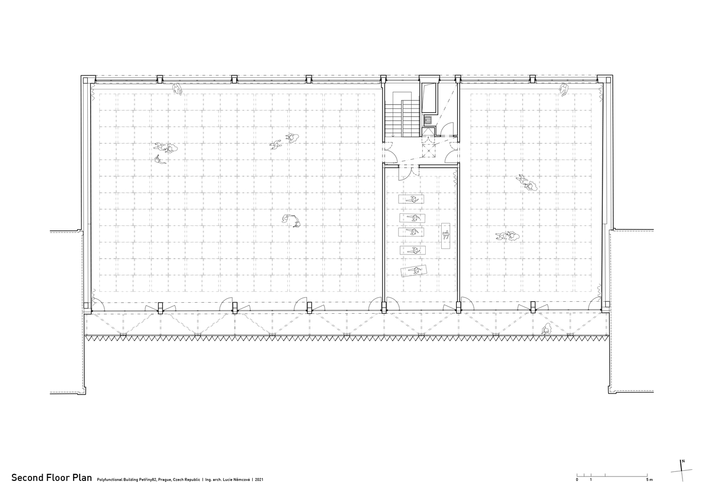
The building was completely renovated. A second floor was constructed atop the existing aboveground levels, and a broad span roof void of internal loadbearing members allowed for the creation of expansive halls fulfilling the requirements for professional dancesport. Such spaces would not have been possible in the lower levels due to the building’s internal loadbearing skeleton system. The dance studio also has facilities on the first floor, including the reception, changing rooms, and a smaller ballet hall. The remainder of this floor comprises office rental space.
Because one of the key aims of the project was to support the retail parterre function of the building, the original shops on the ground floor were completely renovated and enhanced with suitable utility spaces. This provided an opportunity for small businesses, namely a café, which had been noticeably missing in the locality, to make use of the generous spaces with large-format shop windows looking out on the revised space along the main boulevard. Granted a lease on this frontal space by the city, the owner of the building has committed to its upkeep and financed its renovation by landscape architects. At street level, the building features a pedestrian passage, which in light of its position between two linear apartment buildings significantly increases the accessibility and utility of the surrounding public space.
The south-facing building is situated on a busy city boulevard with a tram service. At once distinctive, the façade with balcony platforms shaded by a floating structure of atypically bent perforated slats fulfills a purely functional purpose as well. The design reflects the need to cast a degree of shade on the exposed front of the building and reduce street noise as well as expand the upper floors with useable outdoor space. The concept resulted in an intimate interspace, with the balconies extending along the entire face of the building open to the users of the offices and the dance studio.
The slats are tilted at various angles. In combination with the movement of the observer, who almost always views the building lengthwise thanks to the access boulevard, they give the impression of gentle ripples moving across the façade.
The building is a three-story structure with a reinforced concrete skeleton system. The new third-floor addition lies beneath a roof of pre tensioned panels with a peripheral reinforced concrete loadbearing structure. The building has a partial basement. The extra weight of the new second floor required jet grouting of the foundation columns. The interior layout of the building was redesigned in order to meet contemporary functional needs. On the first and second floors of the building’s south face, walkable steel balcony cantilevers were installed with an outer floating structure of perforated metal slats.
▼项目更多图片
客服
消息
收藏
下载
最近










































