查看完整案例

收藏

下载

翻译
Architects:967arch, BDG
Area :27000 m²
Year :2021
Photographs :Andrea Martiradonna
Manufacturers : MIRAGE, Secco Sistemi, Interface, Schco, Medit, Roversi, VetroInMIRAGE
Lead Architects :Francesca Capuzzo Dolcetta, Tommaso Franchi
Design Team : Raffaele Flagiello, Stefania Vacquin, Maddalena Vidali, Nicola Vignati
Manufacturer : A.T.I. Srl, Settengenesio SpA, Ediltecno Restauri Srl
City : Milan
Country : Italy
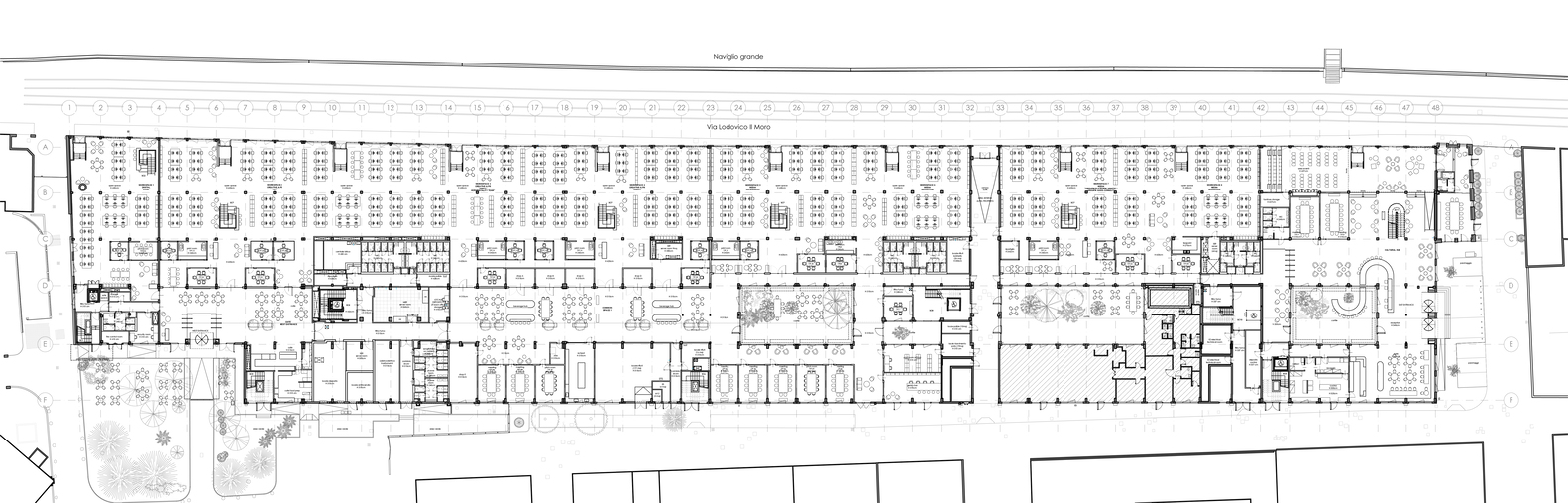
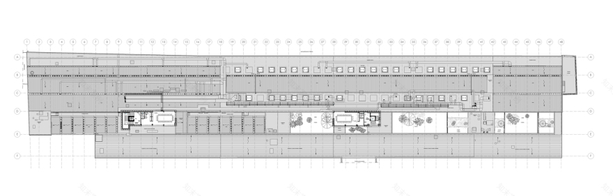
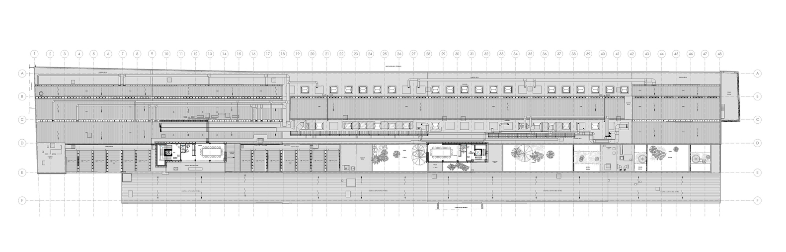
967arch and BDG architecture + design unveil the latest Campus for WPP in Milan, a modern and innovative hub bringing together 35 WPP agencies and 2,000 people into a single location. The Campus provides unique spaces for co-creation and has been designed to specifically enable greater collaboration and encourage creativity across teams for the benefit of clients.
Located within the historic district of San Cristoforo, the WPP Milan Campus is an important part of an urban redevelopment project in an abandoned industrial area where one of the most important factories of the city, the ceramics and homeware manufacturer Richard Ginori, formerly stood. The Campus set out over a total area of 27,000 square meters (1.4 times taller than Torre Velasca, 1.6 times taller than Piazza Duomo, and as big as four football fields), has been renovated to reflect the historical and cultural heritage of this part of Milan.
Designed by BDG architecture + design, and delivered by local partner 967arch, sustainability has been put at the heart of the redevelopment, with the Campus retaining the site’s existing unique architectural footprint while improving its environmental performance.
Previously spread across nine different sites, the co-located agencies will have access to innovative work, social and event spaces equipped with the latest technology, and amenities including restaurants, a minimarket, ATM, and a pharmacy. Sustainability is one of the flagship principles of the Milan Campus, by reusing an existing building, BDG is avoiding the emission of thousands of tonnes of embodied carbon – equivalent to more than 30 percent of the building’s lifetime carbon emissions.
The new Campus will be plastic-free and consume less paper, lit with LED, and powered entirely by 100% renewable energy sources. As part of its environmental impact reduction program, the Campus is expected to save 12,000 MWh of energy, 6,900 tonnes of CO2, 15 tonnes of waste, and 13 million liters of water annually.
▼项目更多图片
客服
消息
收藏
下载
最近























