查看完整案例

收藏

下载

翻译
Architects:Studio Pousti
Area :1947 m²
Year :2021
Photographs :Parham Taghioff , Deed Studio
Manufacturers : Hansgrohe, Blanco, Avandad co, Muuto, Silestone, prostoriaHansgrohe
Lead Architects :Maryam Pousti
Structure Engineers :Sajadian Engineers
Phase Ii Drawings : Melika Dezvarei
Concept Design : Sepehr Jafari, Amir Bakhshi
Visualisation : Soheil Shadi
City : Tehran
Country : Iran
Through drastic re-building in about 4 decades, Tehran has gone from a city of infinite gardens with its single-family dwellings, to a city of infinite apartment blocks. This significant lifestyle change that has occurred within its urban fabric, has impacted issues such as shared ownership, privacy, safety, territory, collective memory, and most importantly, the quality of the living space. Tehran’s current schemes are mostly constructed by developers, whose main criteria are ease of construction, convenience, and cost, compromising spatial quality. This approach has shaped a metropolis with no contextual roots or stories to tell. This is Tehran’s current cityscape. The main challenge of the project is how architecture can portray alternative ways of living, addressing the transition from a single-family dwellings to apartment buildings.
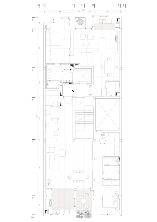
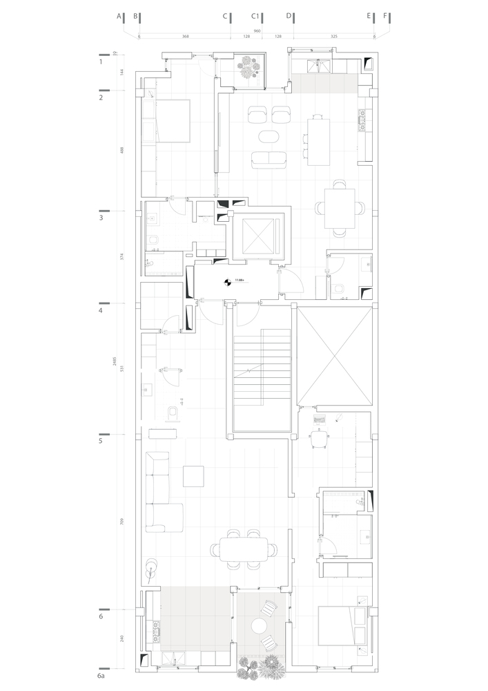
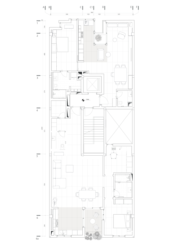
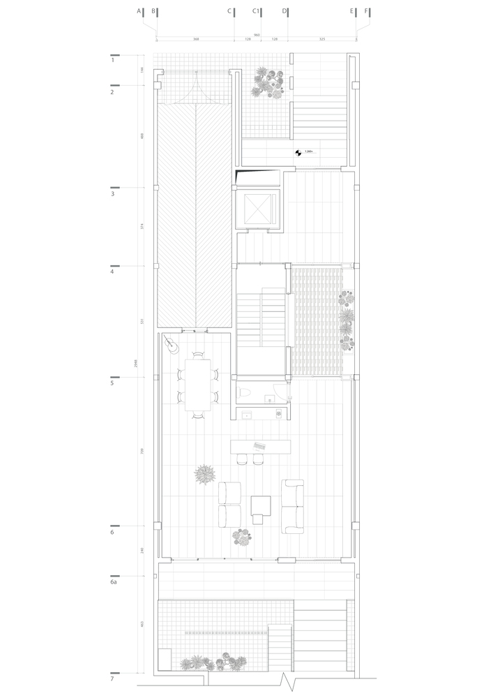
VOID+ is the first residential scheme by Maryam Pousti. It tries to offer an alternative to conventional models of habitation and dense urban living which has resulted in closed-up building envelopes that lack a dialogue with their context. Situated on an extremely narrow site, VOID+ consists of 10 units on 5 Floors. The striking feature of the project is an intimate void strategically carved into the north façade in an attempt to engage the building with its periphery. The massing of the void creates a vertical flow between the skyline of the building and its feet. The main entrance is defined by the particular moment when the verticality of the void turns into a horizontal plane that is stretched 20 meters along the length of the building. This horizontal platform connects the street level to the back garden, allowing for communal activities in the neighborhood.
Each unit sits around an intimate balcony, which is perceived as an interior garden. There is an arrangement for materials and a hierarchy of finishes and textures, which celebrates the value of working with artisans. This is evident in the combed horizontal cement pattern of the façade, which also acts as a conductor of rainwater, keeping the building skin clean. Door handles, railings, lighting fixtures, and cabinets have been skillfully integrated into the architectural detailing of the building. Collaboration with makers of different backgrounds in this project is a reminder that buildings are a product of intense engagement and time.
▼项目更多图片
客服
消息
收藏
下载
最近










































