查看完整案例

收藏

下载

翻译
Architects:Thomas Hagemeijer
Area :34 m²
Year :2021
Photographs :Annette Hagemeijer
Lead Architects :Thomas Hagemeijer
Construction :Bouwbedrijf Bart Smit
City : Ossenzijl
Country : The Netherlands
The project concerns a small photostudio in National Park ‘De Weerribben-Wieden’. The main starting point was to blend with the nature around it, as well as establish a relationship with the adjacent family house.
The park is unique in Europe for its biodiversity and reed fields. The main economic driver of the region has traditionally been the collection of reed. Everywhere around the Netherlands this typical product of the Weerribben- Wieden can be found on roofs of houses. For this project, uncommonly, the reed is used for the front and back façade. When approaching the building, the reed forms a friendly greeting and tangible projection of the landscape behind it.
The reed that is applied in the facade is available in any home-improvement store and generally functions as a fence. An air cavity is applied to allow the reed to dry naturally. A grid of timber planks serves to attach the reed units. The order of measurements formulated by priest-architect Dom Hans van der Laan, informs the rhythm of the grid. The connection to the house is achieved by applying black timber planks according to a local building technique called ‘potdekselen’.
The interior of the studio is as light as possible. The white interior is an abstract representation of the shape of the house. The largest openings are facing the north to let in shadow-less light, which in turn reflects off the white stucco walls and ceiling.
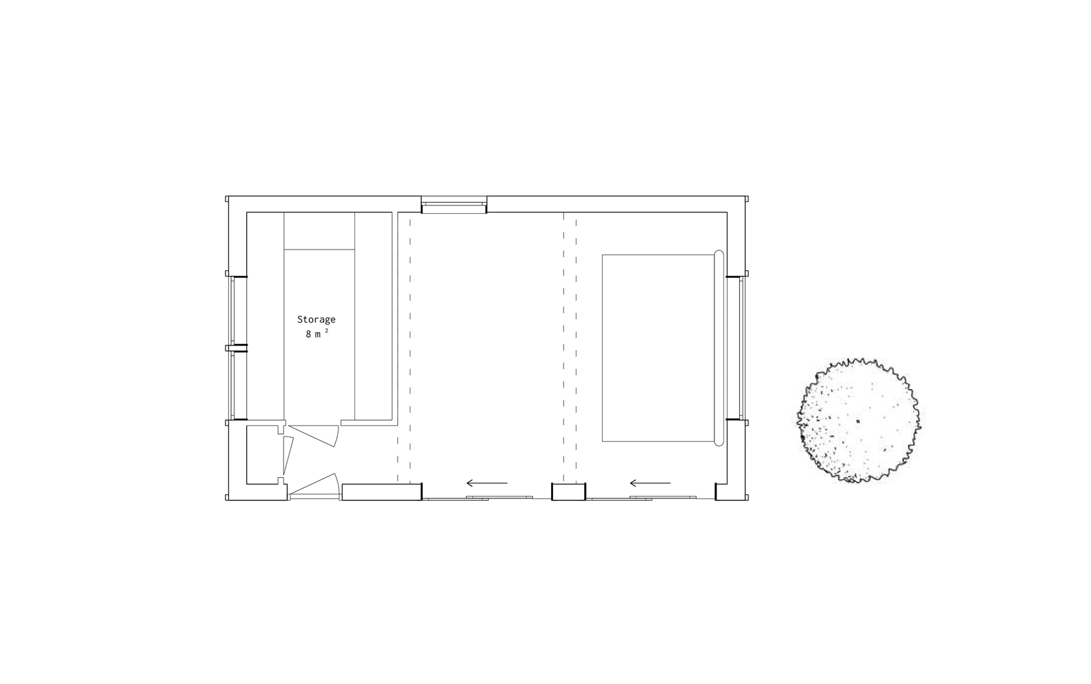
Usually, a paper backdrop screen will be used in photography sessions, ensuring a smooth background. When the paper screen is rolled up, a window of similar dimensions emerges. This window becomes a painting-like frame of the landscape behind the house. The use of the house is flexible. The studio could function to accommodate people in the future as the storage can be transformed into a bathroom and a bed can be placed on the mezzanine above.
▼项目更多图片
客服
消息
收藏
下载
最近






















