查看完整案例


收藏

下载

翻译
Architects:Subtract Architecture
Area :229 m²
Year :2021
Photographs :Dave Kulesza
Manufacturers : Breezway, Cemintel, Lysaght, Sphera, Adbri Masonry, Capral, Hazelwood & Hill, Signorino, VeluxBreezway
Lead Architects :Dmitry Argentov
Builder :Scale Constructions
Structural & Civil Engineer : RCL Consultants
Stylist : Sandford Gray & Hilgar Design Consultants
City : Melbourne
Country : Australia
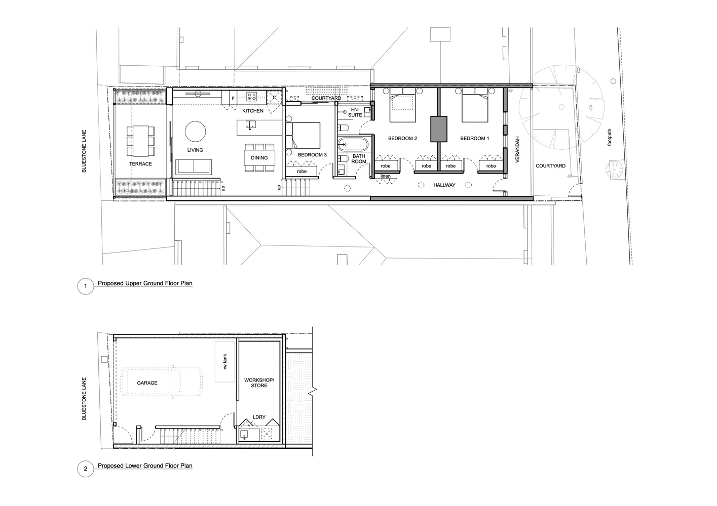
Laneway House is a split-level renovation and extension to a Victorian terrace house located in Melbourne’s inner south. The design responds to the complexities of a constrained site and explores the use of simple and considered architectural gestures to transform the original heritage-listed dwelling into a spacious, robust and contemporary home.
The client was attracted to the original house due to its heritage features and inherent structural integrity, although they acknowledged that it required a significant restoration. Facing a busy road and sited on a narrow and sloping parcel of land, the original house was dark and damp, with poor natural ventilation and minimal outlook to its surroundings, and lacked an interface to the bluestone laneway at the rear.
In considering these factors, a key design decision was to re-orient the house to face the rear laneway, as it was envisaged that it would become the client’s primary point of access. Subsequently, it was vital to provide an architectural identity to the rear of the house to create a sense of arrival from the laneway. The resulting new extension is a restrained and contemporary addition that remains hidden from the main road and is designed to contrast with the original heritage dwelling.
In order to activate the laneway and take advantage of the views to the neighbouring treetops, an elevated terrace and living and dining area is located to the rear, serviced by a kitchen with custom joinery. To mitigate the westerly aspect and the harsh summer sun, a deep timber batten awning and a retractable external blind provide shelter to the internal living and dining areas, with double glazed sliding doors leading out to the terrace. A series of high-level louvre windows facing north and west allow for cross ventilation, passively cooling the house during the day and providing ample daylight to the rear extension. Skylights were also installed in the main bathroom, main bedroom and hallway to allow additional daylight to permeate into the centre of the house.
A further design consideration was the necessity to create a sense of privacy whilst allowing for outward views. Although the new extension abuts the neighbouring dwellings, privacy is maintained through the use of integrated timber batten screening, and planter beds are provided to the rear terrace to limit overlooking and to encourage plant growth.
The material palette is designed to be hard-wearing, sustainable and cost-efficient. Painted concrete block and cement sheeting compliment the contemporary form of the new extension, whilst blackbutt timber battens and decking provide a softer accent. Internally, blackbutt joinery matches the timber flooring that has been installed throughout the house and chrome fixtures are used in the bathrooms and the kitchen due to their durability and ease of maintenance. The design celebrates these modest materials and finishes through careful composition and detailing.
▼项目更多图片
客服
消息
收藏
下载
最近
























