查看完整案例

收藏

下载

翻译
Architects:Coletivo LEVANTE
Area :66 m²
Year :2020
Photographs :Leonardo Finotti
Lead Architects :Fernando Maculan, Joana Magalhães
Design Team : Cássio Lopes, Ricardo Lobato
Clients : Kdu dos Anjos
Locksmith : JL Serralheria e Metalúrgica
Collaborators : Cerâmica Braúnas
City : Santana do Cafezal
Country : Brazil
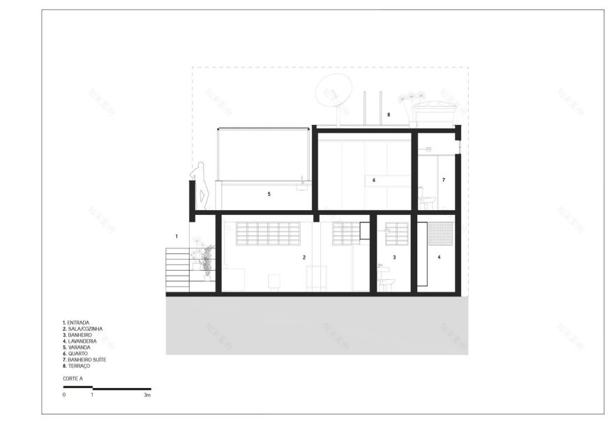
“Lá da Favelinha” cultural center’s manager, Kdu dos Anjos, prefers to call this house, affectionately, "my shack". The house was implanted in an angled plot, of approximately 70m², where it was possible to fit two structural modules of 3×3m, on two levels, bordered by a small extension of the house leaning against the border. From afar, there is no difference in the amalgam of apparent ceramic brick constructions of the “Aglomerado da Serra”, the slum where the house is located.
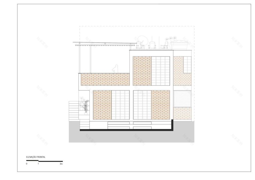
The classic block of 8 holes is what determines the materiality of the house, only settled horizontally and revealing its beaded face. Something very unusual in the slums, since settling the standing block is faster and makes the material more profitable. In this case, the idea was to ensure better thermal inertia for the house, since, with the horizontal settlement, the width of the wall will correspond to the larger size of the block. In addition, we explore different ways of using this modular element, which in some situations appears as a latticework wall, or combined with concrete blocks, by a structural need. We maintained the constructive repertoire characteristic of slums’ vernacular architecture. As to the structure and closure of the apparent bricks, we were careful to observe issues related to the flow of rainwater and its absorption on the ground; minimize intervention in the soil; offer natural ventilation and lighting generously, in addition to temperature control with slight elements such as eucalyptus roll parts and vegetation. And, of course, make the most of the view, which is extraordinary and cannot be seen from anywhere else in the city.
“Casa no Pomar do Cafezal” was the second work carried out by the collective “LEVANTE”, a group of architects, students, and engineers, led by Fernando Maculan and Joana Magalhães, whose goal is to elaborate projects, bring suppliers and sponsors to slum architecture in Belo Horizonte. The design of the house represents a constructive model that uses common materials in the slums, with an adequate implementation and attention to lighting and ventilation, resulting in a space with great environmental quality.
▼项目更多图片
客服
消息
收藏
下载
最近























