查看完整案例


收藏

下载

翻译
Architects:Juncos & Asoc. Arquitectura
Area :800 m²
Year :2020
Photographs :Gonzalo Viramonte
Manufacturers : Lumion, Edificor, Patagonia Floring, Pea Aberturas, REHAU, Silestone, Tangente Group, Trimble NavigationLumion
City : Villa Allende
Country : Argentina
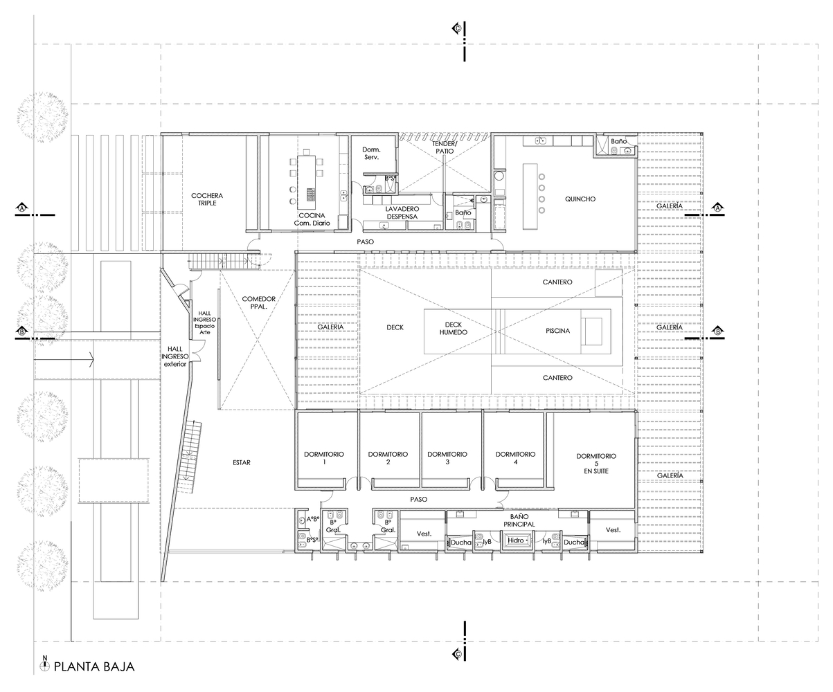
The central courtyard as the focal point and main center of the house was the basic idea of the project, around which all social and private daytime activities are developed. The pure and simple volumetry with white as the predominant color is the backdrop for the equipment and decoration.
This great prism perforated by this central courtyard has two wings, the bedroom wing, and the services and barbecue wing. These arms take height in the central social space of the house, articulating the 2 wings, the double-height living room, where the playroom/gym and the library have balconies.
The materials and textures are neutral where the spaces, interior objects, and visuals are the protagonists of the project.
▼项目更多图片
客服
消息
收藏
下载
最近






















