查看完整案例


收藏

下载

翻译
Architects:Karpiel Steindel Architektura
Area :7178 m²
Year :2020
Photographs :Paweł Ulatowski
Lead Architects :Jan Karpiel Bułecka, Marcin Steindel [Project cooperation: Zygmunt Staszel, Wojciech Staszel, Agnieszka Gumuła]
City : Zakopane
Country : Poland
The Mountain Aparthotel Resort in the heart of the winter capital of Poland. The Mountain Aparthotel Resort in Zakopane designed by Polish studio Karpiel Steindel Architektura has cast new light on the character of contemporary leisure architecture in the vicinity of the Tatra Mountains.
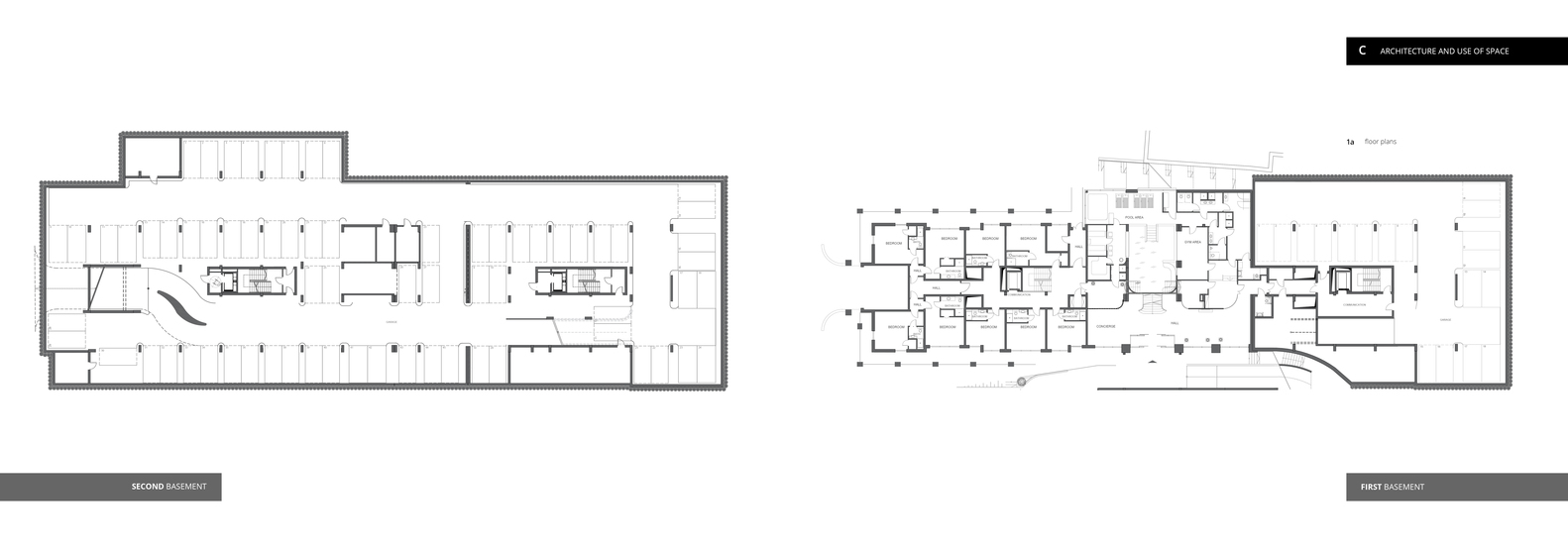
The building is a five-star aparthotel located in the center of Zakopane. There are 129 comfortable apartments in the condominium complex. The project draws the key elements of its architectural and construction traditions from the location, its surroundings, and the bold, modernist projects present in Zakopane. Already in the 1930s, examples of Alpine-style architecture had begun to appear near Giewont. One of the most impressive is the Mountain Hotel Kalatówki located in glade Kalatówki, which was originally built to host the FIS World Championships in 1939; it was an important inspiration for the award-winning Mountain Aparthotel Resort.
The design has a modern shape with a flat roof, which, due to the use of eaves extending beyond the outline of the building, gives the observer the illusion of it being sloped. This optical illusion allows the modern building to reference the traditional architectural style in the region. "The rhythm of the wooden grates supporting these scaled eaves is a structural element that gives the building a modern expression", emphasises Jan Karpiel-Bułecka jr., co-owner of the Karpiel Steindel Architektura office.
Thanks to this design, the modern building fits into the surroundings. Only natural materials such as larch wood, sandstone slabs, and granite were used to finish the structure. The honesty of the materials used emphasises the warm and cosy character of the resort. More importantly, the materials employed draw directly from the construction tradition of the region. On the balconies, there are stone pots planted to reflect the local floral species. This evokes associations with plants adapted to extreme weather conditions growing on the granite shelves of the rocky Tatra Mountains.
The roofs of the buildings were also installed with green plantings to increase the biologically active surface of the structure. This natural insulation of the building will also increase its functional value. Thanks to the living insulation a large area of the roof will not overheat, increasing the comfort of use. At the same time, it is also a key element of the architectural style of the Karpiel Steindel office, emphasising its growing pro-ecological trend.
▼项目更多图片
客服
消息
收藏
下载
最近










































