查看完整案例


收藏

下载

翻译
Architects:studioLARQ
Area :140 m²
Year :2020
Manufacturers : AutoDesk, Tres, Fontini, Fosroc Nitoflor, Roca, Royo, SGG CLIMALIT, Safir, Trimble NavigationAutoDesk
Lead Architect :Luis Portero
Origins. One of our favourite projects. “Total architecture”, the whole process. Measurements, conversations, sketches, plans, on-site visits, building works, all kinds of functional details, and the last phase, lighting, and interior design. We turned everything upside down to achieve: Other whole ways of thinking and living in the home that imply very different project techniques and that, without doubt, result in domestic spaces that are, to a greater or lesser extent, far away from the conventional ones. Iñaki Ábalos. Always guided by our work philosophy: adaptability to change through creative thinking, generating new ideas that provide our architectural solutions with the innovation we try to achieve. " I can't understand why people are frightened of new ideas. I'm frightened of the old ones." John Cage. The use of design as a language, indifferent to the styles that come and go.
Methodology always based on listening to the client’s needs in order to make a «custom-made suit» that reflects their personality and fits their lifestyle. We do not like tags like “Nordic”, “minimalist”, “eclectic”, “classic”, “industrial”… and many other fashionable ones. “Styles come and go. Good design is a language, not a style”. Massimo Vignelli. Keeping an eye on the process as much as the result. Constants like simplicity, clarity, functionality and harmony are the ones that rule projects like this one.
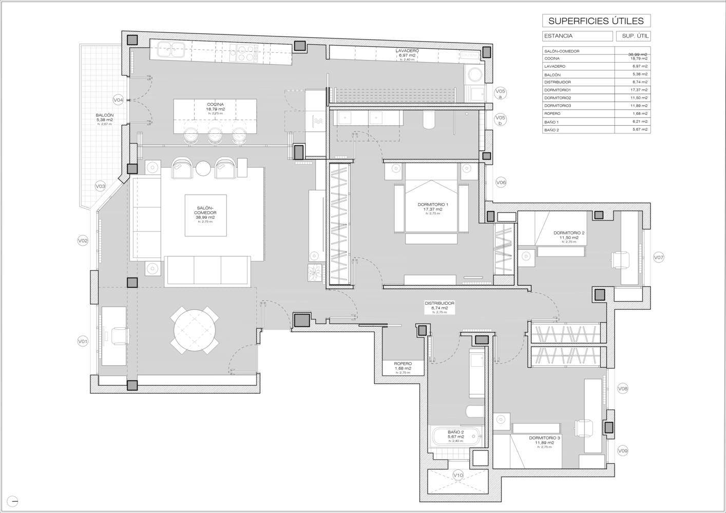
Project. As soon as we enter the home, we feel its essence and the way of living it: an elegant, retro atmosphere, and a “slow life” philosophy where the biggest and brightest space hosts everyday life: cooking, talking with friends, reading, watching films, resting or listening to music. This project is all about that: equipping the different spaces with everything they need to be used. The floor plan is divided in a day area that faces the south façade, and the sleeping area, next to a big backyard facing north (and that almost becomes another façade). Ceilings and walls are finished with a rustic filler just like whitewashed ones. There is no false ceiling: it is almost 3 meters headroom. Reclaimed doors with retro handles. The vintage “Fontini” switches. The restored, steel-made Roca radiators. Air conditioning system -only in the day area- using a single steel duct. Ceiling fans. All the paintings are by the owners. Same as the restoration of the furniture. This home’s spirit is about reusing, giving a second chance to objects that are not only still useful, but are even more delightful than before. A lively neighbourhood that is close to everything. A home filled with light. A two -façade home, with a single and whole space where kitchen and living room meet each other. A big container of life and personal experiences.
▼项目更多图片
客服
消息
收藏
下载
最近


































