查看完整案例


收藏

下载

翻译
Architects:Francesco Pierazzi Architects
Area :99 m²
Year :2019
Photographs :Lorenzo Zandri
Manufacturers : Forbo Flooring Systems, Castrads, PaoloInteriors, VeluxForbo Flooring Systems
Engineering :Torsional Structural Engineering
Design Team : Francesco Pierazzi, Alberto Soria Santana, Daniela Gorini
City : London
Country : United Kingdom
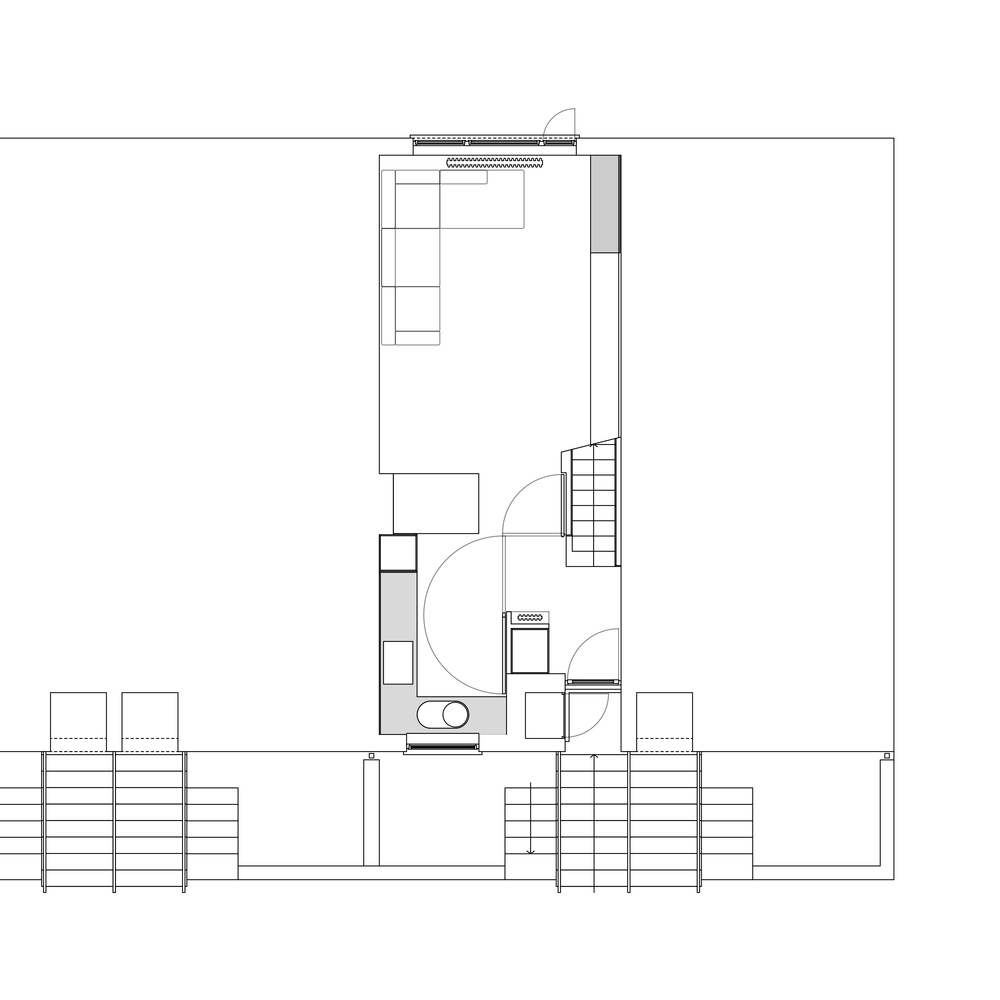
The property, a maisonette arranged on the upper ground and first floor levels, is set within a 1980s terrace overlooking a similar development designed in 1976 by Sir Terry Farrell and Sir Nicholas Grimshaw. The client wanted to convert the steep roofspace into additional accommodations and to reconfigure the existing house to improve the neglected interiors. The design approach adopts a phenomenological strategy devised to stimulate the bodies of the users when negotiating different spaces, whether ascending or descending.
Everyday movements around the house generate an enhanced choreography that transforms static spaces into a dynamic experience. The reconfiguration of the middle floor aims to reduce circulation space in favour of larger bedrooms and service facilities. While the brick shell of the house is treated as a blank volume, the stairwell, designed as a subordinate space within a primary volume, is lined with birch plywood from the ground to the roof level.
Concurrently the materials of seamless grey floors and white vertical surfaces, are reduced to the minimum to enhance the natural property of the timber in its phenomenological role. In order to create interest within the three floors - despite the overall paired down palette - several contrasting materials have been employed and juxtaposed to create tensions between precious, semi-precious, and off the shelves materials.
For this purpose grey vinyl tiles contrast with ordinary bricks - whitewashed - as well as birch plywood panels, cast iron radiators, and precious marbles. The challenge of the project was to devise an original interior on three levels with no alterations to the facades while, concurrently, maximising the internal floor area. With a strong conceptual approach, the space can be handed over to the owner for appropriation and personalisation.
▼项目更多图片
客服
消息
收藏
下载
最近




























