查看完整案例

收藏

下载

翻译
Architects:Alana Cooke
Area :58 m²
Year :2019
Photographs :Tom Ross
Manufacturers : Armstrong Ceilings, Big River Group, Classic Ceramics, Dowel Jones, Dulux, Fibbonacci Stone, Light project, LockerArmstrong Ceilings
Engineering :Neilly Davies Consulting Engineers
Design Team : Alana Cooke, Ivy Geng
Clients : Tony Xie, Sanny Li
City : Waterloo
Country : Australia
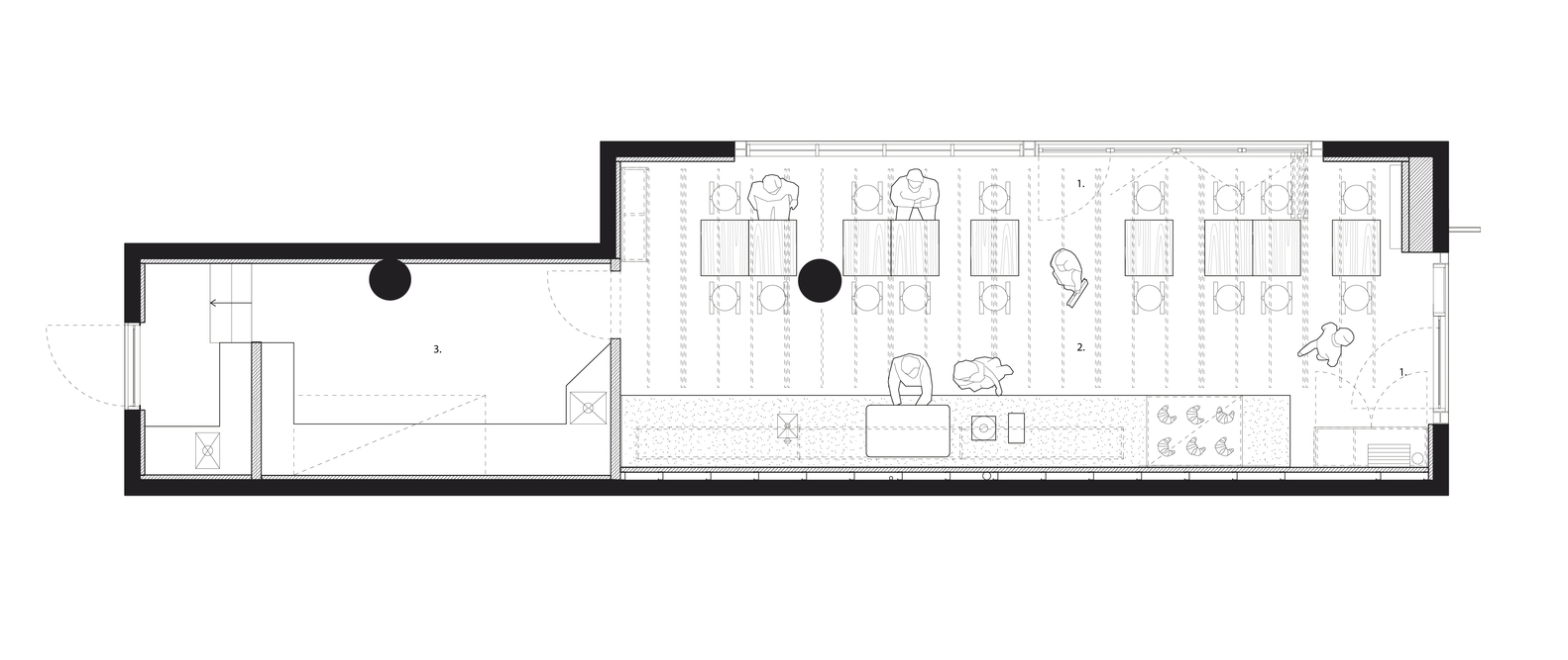
A specialty coffee shop in Waterloo, Sydney, offering a high-quality product and coffee education. The curated interior is restrained but warmly inclusive; its atmosphere elevated by a calm, minimally composed palette. Here a typical café layout is inverted. The hardwood timber counter forms a singular, finely executed element, pressed up against the wall and running the length of the space. Equipment and process face outward toward the customer, inviting visual participation in the coffee-making process. The shared circulation allows for a conceptual experience more akin to homely hospitality – our space is your space – and simplifies the service function.
Suspended grey mesh shelving drops from the ceiling, hovering over the counter to provide display, storage and illumination to the coffee-making activities below. Custom-detailed grey ceiling blades are dual purpose: they compress the height of the space to create intimacy and intermittently conceal long lengths of lighting. Timber tables link back to the counter both in materiality and parallel placement through the entirety of the space. Accents of warm hardwood timber cabinetry and tabletops are in high contrast to the muted grey tones that saturate the interior through quiet but dense layering: light grey terrazzo, tiles, vinyl, mesh, satin and matte paint finishes.
Plus Two Coffee is a visually simple, highly functional interior that invites lingering in its brightly sedate feel. All elements are considered, textural and precise, to intentionally instil a sense of refinement and welcome.
▼项目更多图片
客服
消息
收藏
下载
最近



















