查看完整案例


收藏

下载

翻译
Architects:büro für bauform
Area :284 m²
Year :2019
Photographs :Markus Vogt
Manufacturers : Alape, Fischer, Bauder, Brucha, HeidelbergCement, Stahlbau Zienert, SteinbergAlape
Lead Architect : Jürgen Lehmeier
Project Participant : Eduard Klotz, Benedikt Weigmann, Carmen Selaru
Energy Consulting : Winfried Thör/ Eduard Klotz
City : Nürnberg
Country : Germany
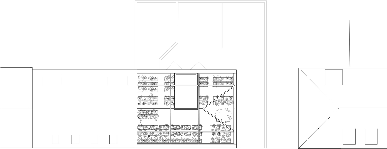
The building shows how we imagine people living in the future. The rooftop garden increases the biodiversity of cities, enhances the air quality, and cools down the building through shading and water vaporization. Furthermore, the residents share the garden to grow vegetables and fruits close to their homes. The idea of community is a cornerstone of this project. The image of the building is based on its historic appearance, which was demolished during the bombing of World War II. Unfinished, raw, and open, the architectural volume is a representation of its own remains
This project is the experiment of using unconventional materials in order to achieve high-quality architecture in an urban setting. The construction methods are borrowed from industrial structures and are enhanced through custom details. Highly prefabricated materials guarantee timely construction progress and cost-efficiency.
The steel structure ensures flexibility and adaptability for future uses. The plants on the roof are being watered with collected rainwater and they help reduce the carbon footprint of the building. The building is a symbiosis between organic and built structures.
Every resident of the city house has access to planters for growing wholesome and healthy foods. The house becomes a symbiosis of organic structure and inner-city housing. The presence of the plants increases biodiversity while also playing a vital role in shading and cooling the building during the summer.
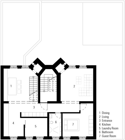
The house was acquired by a family with the purpose of extending it into a multi-use building, that includes a home for its five members, three commercial spaces, and two one-bedroom apartments. The historic districts of Nuremberg have a high urban density and it is nearly impossible to find homes with private green spaces. Thus the decision was made to take the traditional backyard and place it on the rooftop of the house.
The result is a new and unique urban typology, that has a lot of potential for future housing. The steel structure that frames the rooftop garden is a nod to the original roof shape of the pre-war architecture. From a heritage point of view, the architect chose to recreate the shape of the original eaves with steel beams, resulting in a poetic quote of a space that was lost.
All residents can use the rooftop for recreational activities and gardening. The main use in our case is gardening, hence the PlantHouse. By using planters the is experience less exhausting and the rain collectors ensure a sustainable water supply. This building is a prototype for a future form of cohabitation that ensures access to healthy food and conscious community-based living in cities.
▼项目更多图片
客服
消息
收藏
下载
最近





































