查看完整案例

收藏

下载

翻译
Architects:Landolfo & Asoc, Marcos Asa
Area :100 m²
Year :2019
Photographs :Javier Agustin Rojas
Manufacturers : AutoDesk, 3D MAX STUDIO, Molinos Tarquini, ferrumAutoDesk
Lead Architects :Hernan Landolf, Marcos Asa
Collaborators : Franco Gilardi
City : Buenos Aires
Country : Argentina
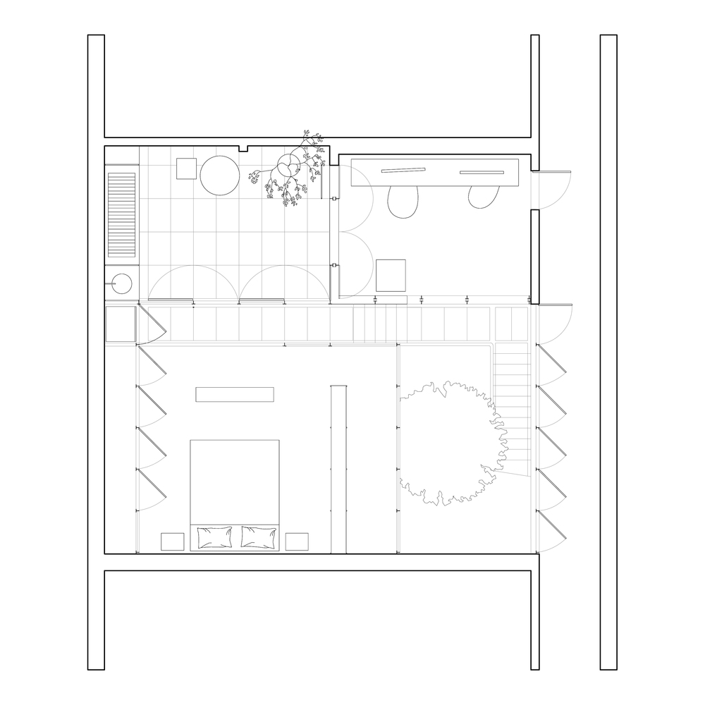
A small apartment midway down the hall in a horizontal property must double it`s habitable space in order to become a home/office.
The main operation is than to complete the volume by means of a light, transparent structure, as well as the colonization of the terraces with a simple flooring, the result is more than enough meter for the house to develop.
Two spaces are left without a use inside this surplus. With the goal of charging them with evocative meaning, we position inside them two pieces of landscape; a tree, and a glass screen.
On the ground floor, the olive tree afects visually the rooms it articulates. On the first floor, the glass screen functions as a veil to and fro the bedroom, where aided by a game of reflections, opacities and transparencies, the space is projected towards the terraces.
▼项目更多图片
客服
消息
收藏
下载
最近




































