查看完整案例

收藏

下载

翻译
Architects:Kaden + Lager
Area :5685 m²
Year :2019
Photographs :Bernd Borchardt
Manufacturers : Owens Corning, POHL, Nemetschek, DEUTSCHE ROCKWOOL, Dachbegrnung, Deutsche FOAMGLAS, Fendt Fenster, Fermacell, LENO, Pohl Gruppe, Schneider, Schneider Floor, WAREMA Gruppe, ZBLIN Timber GmbHOwens Corning
Sustainability Consultant :BAUES WUNDER Lambertz & Friesdorf Beratende Ingenieure PartGmbB, BAUES WUNDER, Lambertz & Friesdorf Beratende Ingenieure PartGmbB
Structural Engineering :bauart Konstruktions GmbH & Co. KG, IFB Ingenieure GmbH, HVAC
Design Team : Tom Kaden, Markus Lager, Simon Beckmann, Eva Bontzol, Sebastian Dammeyer, Lena Fischer, Michael Gaßmann, Tabea Huth, Ilse Jendro, Jutta Kliesch, Lisa Seibert, Philip Stalbohm
Clients : Stadtsiedlung Heilbronn GmbH
Façade Engineering : Priedemann Fassadenberatung GmbH
Fire Protection : Kruse Brandschutzingenieure GmbH & Co.KG, Dehne
Timber Construction : Ed. Züblin AG, Bereich Heilbronn, ZÜBLIN Timber
Façade Engineering : Priedemann Fassadenberatung GmbH;
Fire Protection : Dehne, Kruse Brandschutzingenieure GmbH & Co. KG
Timber Construction : Ed. Züblin AG, Bereich Heilbronn, ZÜBLIN Timber
City : Heilbronn
Country : Germany
A milestone in modern timber construction, SKAIO is Germany’s first wooden high-rise and currently the country’s tallest wooden building. Its timber-frame construction is, to a large extent, prefabricated, comprised of supporting structures made of laminated timber, and wooden slabs that rest on steel ring beams that resonate with the slim design of the construction. The project is part of the recently developed residential quarter Neckarbogen, an urban district in Heilbronn.
While the Bundesgartenschau, a biennial federal horticulture show held in Germany, traditionally features landscape architecture and gardening with often beneficial, lasting effects on urban living, this year’s host city approached the format from a slightly different angle. Located in the north of Baden-Württemberg, along the river banks of the Neckar, Heilbronn was largely rebuilt in the 1950s after airstrikes had wiped out considerable portions of the urban fabric, including the city’s historic district. Today, its population is steadily growing, and the organizers of the exhibition decided to devise a new residential quarter with 22 buildings—home for 3,500 people.
The buildings are designed by various different architects to guarantee maximum diversity within the confines of the city’s building codes. One such new building is SKAIO, conceived and constructed by the Berlin-based architecture firm Kaden+Lager. The practice recently made its mark with innovative hybrid constructions, cleverly combining various building materials in a way that allows the wood to re-enter German cities. In the aftermath of the Second World War in Germany in particular, wood has fallen into disgrace as an urban building material.
While combustibility seems an obvious concern, this evolution rests mostly on symbolic grounds: in terms of fire safety, the performance of timber actually outweighs that of steel, and its fire resistance can be calculated to the minute. While concrete’s negative environmental impact has gained media attention —earlier this year the British Guardian featured a concrete week— Kaden+Lager’s designs exude a climate-friendly presence through their use of wood. The amount of wood used for SKAIO, for instance, stores 1,200 metric tons of carbon dioxide. A veritable construction material that indeed deserves to be labeled sustainable, wood is comparatively ‘fast’.
A spruce tree, for instance, can grow up to half a meter per year under good conditions. Whereas a grain of sand could take several thousand years to form and it is still crucial for the production of concrete. Through off-site prefabrication, wood furthermore offers significant advantages: construction is fast, precise, and proper; as off-site working conditions are safer, and more senior craftspeople can use their long-standing, indispensable knowledge. Prioritizing wood’s performance over its visual omnipresence, Kaden+Lager makes use of the material in a pragmatic way.
The firm deploys wood where it makes sense. As timber concrete composites in slabs, as prefabricated walls, and structurally with pillars made of laminated timber, wood plays a crucial role in Kaden+Lager’s design practice. Often disguised from the outside, their timber constructions are not immediately recognizable as such. Their buildings simply don’t resemble typical wooden huts. This is in part owing to their modernist sobriety, in part owing to their finish: for their façades, Kaden+Lager often choose aluminium cladding or plaster. Adding to this twist, the circulation cores and ground floors are made of reinforced concrete which further defines Kaden+Lager’s undogmatic approach to timber construction.
SKAIO is the pinnacle of the firm’s recent achievements. Soaring as an aluminum-clad volume on the southeast corner of Heilbronn’s new real estate development, the 34 meters (approx. 112 feet) tall residential block features ten stories and offers 60 apartments, 40% of which are subsidized by the state. The internal layout has been adapted to reflect the new urban realities, in which the nuclear family no longer represents the sole point of reference. SKAIO instead offers apartment types that are usually hard to come by in a contemporary city: 56 smaller studios and one-bedroom apartments.
These individual units, however, can be easily combined to accommodate future changes in use. In addition, four shared apartments are dedicated to socially disadvantaged members of society, run by two of Heilbronn’s social welfare organizations. The studios start, in-floor space, at 40 square meters (approx. 430 square feet); the largest flats offer 90 square meters (approx. 969 square feet). Every apartment has its own loggia, floor to ceiling windows to provide for a maximum amount of daylight, and energy-efficient underfloor heating. The roof has a common garden terrace, partly furnished, partly green, with produce gardens and stunning views across the city.
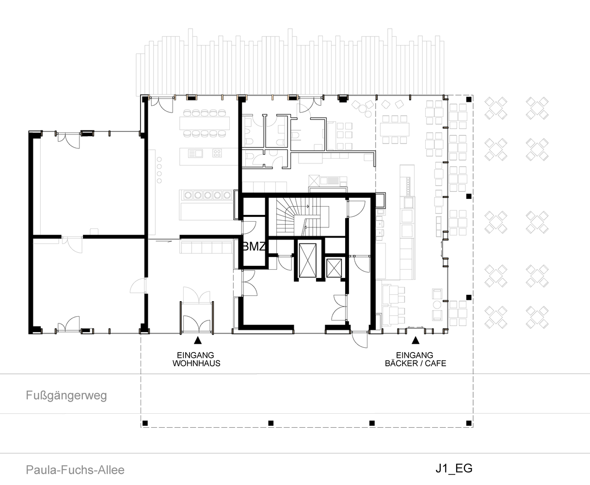
Above the underground car park, the ground floor features commercial spaces, common spaces—laundry room, communal kitchen—and ample bicycle parking. Common laundry rooms in Germany tend to be rare and save valuable surface area in each apartment. A central core made of reinforced concrete contains the safety-stairwell and an elevator, which allows for barrier-free access to all apartments. While the primary structure in the basement, ground floor, and first floor are made of reinforced concrete, all other load-bearing components are made of wood or wood-steel hybrids. In total, SKAIO comprises almost 1,300 cubic meters (45,909 cubic feet) of certified wood, thus taking a firm stance against issues in the built environment in view of the 2015 Paris Agreement.
▼项目更多图片
客服
消息
收藏
下载
最近






























