查看完整案例


收藏

下载

翻译
Architects:Rostami Atash Atelier
Area :2100 ft²
Year :2019
Photographs :Andrew Snow
Lead Architects :Hesam Rostami - Bahareh Atash
City : Toronto
Country : Canada
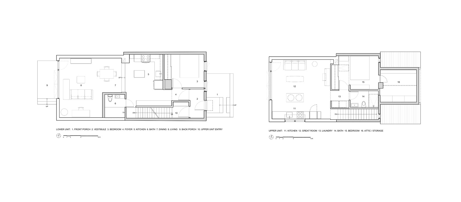
The future of cities is tied to sharing space and resources. Shared housing seems inevitable to provide multigenerational homes, aging in place for baby boomers, or affordable models of ownership for millennials. Mild densification without changing the permitted form and density in underutilized residential-detached zone seems to be a viable solution. Already allowed secondary suit will simply double the number of households in a neighborhood, but we were not settling for the common basement unit, but rather a properly lit and ventilated one.
Looking for a suitable place to develop a prototype, we found the tiniest house on a block in Toronto’s east end with a beautiful backyard and room to grow. East York is an exemplary borough of Toronto equipped with a balance of city amenities and connection to nature, and this house was a typical example of good proportions, solid bones, natural finishes, and maybe not historically valuable but a century-old charming.
We rearranged the layout in the existing house and optimized the area of the two-story addition structure in the back to provide enough room for two stacked units. While the new sunken living room in the lower unit provides extra height and ample light for main spaces facing the porch and backyard, the extra high ceiling of the great room in the upper unit brings in the sunshine and cross ventilation.
Large windows facing the rear of the lot carefully frame a seemingly endless row of backyards while avoiding any unwanted privacy concerns. Strategic placement of skylights brought extra light into the bedroom and washroom meaning we could maintain the existing low-pitched roof in front of the house keeping the visual impact on the street minimal.
As a principal, we aimed for the least amount of waste in two ways, keep and repurpose as much as possible, and build simple, natural, and local. Length of structural span, cutline of cladding panels, and number & area of proposed windows have been carefully designed to optimize the use of material and energy needed. Existing kitchen cabinets and appliances in the lower unit are reconfigured, repainted, and combined with a new countertop, custom-made brass shelves as well as ready-to-install upper cabinets.
The same amalgamation of old & new, cheap & expensive, off the self, and custom is used throughout the house. Most of the furniture is refurbished Danish or Canadian midcentury modern or pieces we previously owned, complimented with custom build light fixtures and handmade fabrics and rugs.
Visual and sensory connection to natural materials and textures is the main basis of the design palette. Wherever possible we showcased the pure and natural beauty of stone, wood, or metal. While exposed structural lumber joists in the great room expose what this structure is made of, it is paired with carefully tailored and finished maple boarding and trim bringing warmth to the space. Brass, various species of local wood with a natural finish, and limited use of small-cut marble are among the precious materials we used in anticipation to see them enrich the space while aging naturally.
客服
消息
收藏
下载
最近














