查看完整案例

收藏

下载

翻译
Architects:Atelier Circonflexe Architectes
Area :55 m²
Year :2019
Photographs :Laetitia Gessler
Structure Engineers :Normal Office
Direction / Project : Lacaze Rosine, Papin Marie-Aude
City : Châtel-Saint-Denis
Country : Switzerland
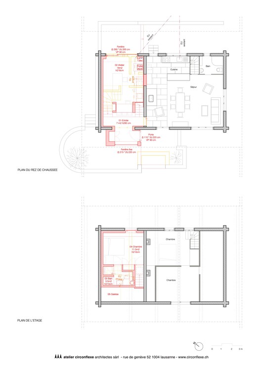
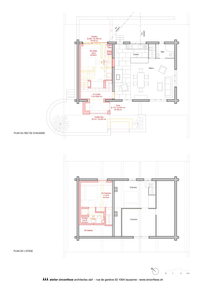
The transformation of a part of the chalet aims to accommodate first an entrance area as well as a typography workshop that can be used independently. In a limited volume, an important work of detail was carried out.
The project explores the transversality of the space in order to optimize the light contribution and generate rich visual relationships with the surrounding nature.
Half-levels subdivide the space, which is organized around a central piece of furniture that serves both as a workshop office and as a bench at the entrance. The furnishings are made entirely of wood, in keeping with the chalet.
The exterior façade is made of pre-grained larch. On the first floor, a large skylight made of copper allows for the creation of a bedroom and a bathroom. An ingenious system of opening a bench integrated into the facade allows the heat released by a stove to rise to the floor.
▼项目更多图片
客服
消息
收藏
下载
最近




















