查看完整案例

收藏

下载

翻译
Architects:Ruer Architectural Design
Area :2600 m²
Year :2019
Photographs :Arch-Exist, Chi Zhang, Yongchun Li
Lead Architects :Chenlu Zhang,Cai Zhang
Engineering :Hebei Architectural Design & Research Institute Co.Ltd.
Consultant :Hebei Jintan Construction Development Co.Ltd.
Landscape :Shanghai Ruer Architectural Design Co.Ltd.
Design Team : Chenglong Zhang, Chengyu Geng, Xin Zhao, Zheng Wu, Xiuli Guo, Yuhao Zhu
Client : Hebei Port Group, Qixing Camp Education Foundation
City : Qinhuangdao
Country : China
Qixing Xigang Campsite is located in Xigang District, Qinhuangdao City, standing in Kailuan Port Westport Industrial Park which owns a history of 120 years. Hebei Port Group connects some areas such as the port historical and cultural features area with the city. It is an important part of Qinhuangdao City's overall master plan, which aims to build the former site of Xigang District with an area of more than 1,200 mu, into a new cultural industry park.
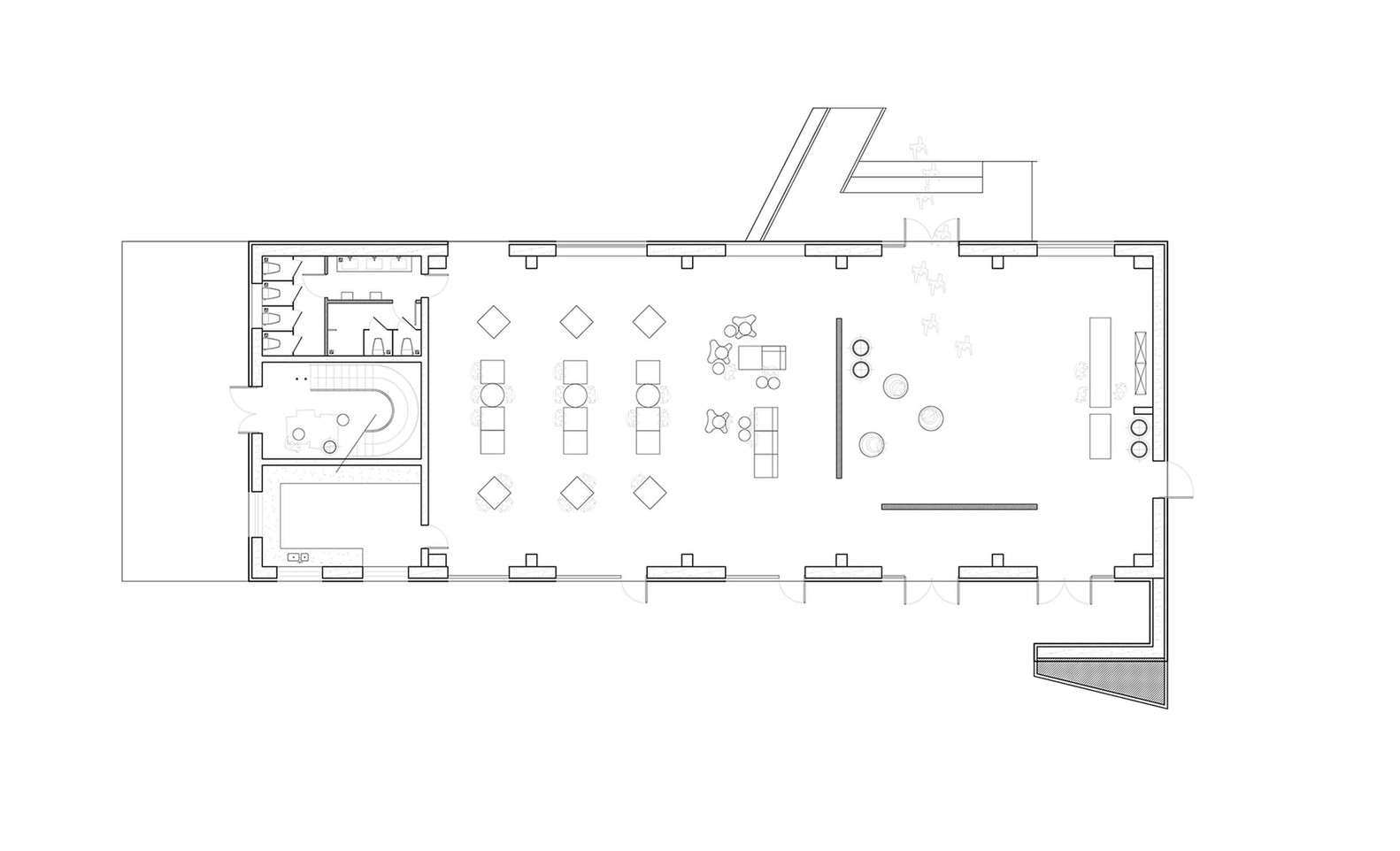
The site of Kaixing Xigang Camp is rectangular in shape, located south of Gate 1 of Xigang Garden, and on the north side of the site is Qingsong Road. Around the south side of the plot is a green belt that transforms the railway line into a "sea of flowers", where the entire landscape is unobstructed. Qihang Xigang Camp is transformed from the original eight old buildings on the plot. Due to its unique location, it also plays a public role connecting the base with the city and cultural park.
Eight buildings are linked and anchored together to form three new building volumes. Mass A consists of three buildings in the east, and its functional content includes art exhibition halls, baking workshops, and family apartments. Mass B consists of two buildings in the middle, including the reception center, souvenir store, multimedia exhibition hall, and mentor workshop. Mass C is composed of three buildings in the west, including carpentry workshop, traditional culture workshop, small theater, and nature workshop.
"The Peach Colony" has a text, "After a dozen steps, it opened into a flood of light. He saw before his eyes a wide, level valley, with houses and fields and farms. There were bamboos and mulberries; farmers were working and dogs and chickens were running about."
After entering the park through the art center, all the scenery can be seen. The workshops are scattered into a sheltered, quiet and peaceful natural environment, and people walking around can feel as if they are in the field. Entering through the doors, the size of different workshops varies, and the windows catch different views.
▼项目更多图片
客服
消息
收藏
下载
最近


































