查看完整案例

收藏

下载

翻译
Architects:Martinez y Soler Arquitectura
Area :726 m²
Year :2019
Photographs :Fernando Alda
Manufacturers : Parklex Prodema, Placo, Saloni, AGC, Acor, Keraben, QUICK-STEPParklex Prodema
Lead Architect :Rafael Soler Márquez y Francisco Martínez Manso
Collaborators : Miguel Ángel Rodríguez Navia, Miguel Ángel Jiménez Dengra
Construction : Alberto Domínguez Blanco
Promotor : Alberto Domínguez Blanco
City : Granada
Country : Spain
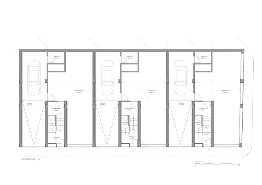
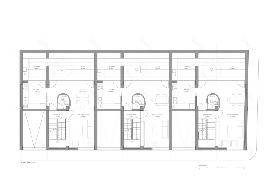
The project, located in an area of recent urban extension, proposes a grouping of three single-family homes that define a compact and unitary construction. They adjust to the exterior alignments of the plot and release an interior space of each home. This provision gives the building an urban scale and allows to open the spaces of the houses both to the streets and to the inner courtyards, protected and better oriented.
The houses are developed in height, having in each level different programs: in the semi-basement the parking, spaces for installations and spaces for different uses; on the ground floor the living spaces and kitchens open to the patio of the interior of the plot that is integrated as a space of use more of the house, arranging the most private rooms on a higher level. A last floor houses an open space designed in continuity with the outdoor terraces that invite distant views of Granada and Sierra Nevada.
The project has been built on principles of rationality, simplicity and economy, with constructive and material solutions attentive to the durability of the building and the cordiality of its spaces in a desire that its architecture make the life of people who are friendly and comfortable. inhabit.
▼项目更多图片
客服
消息
收藏
下载
最近































