查看完整案例

收藏

下载

翻译
Architects:XYP Design+Technology
Area :12000 m²
Year :2018
Photographs :Xun Yu
Structural / Building Technical Design : Tongji University Architectural Design and Research Institute Co., Ltd.
Client : Nanxiang Town
Architect In Charge : Xun Yu
Design Team : Yage Ma, Xiuxiu Wang, Yang Yang, An Yan
Structural Building Technical Design : Tongji University Architectural Design and Research Institute Co., Ltd.
City : Shanghai
Country : China
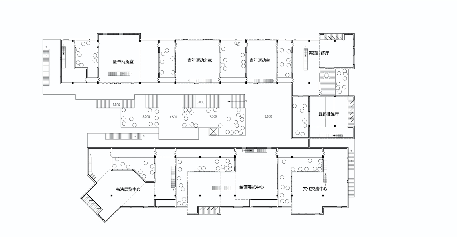
Sky VillageThe Community Center Naxiang should not only be a place for commerce or entertainment, but should provide public services and communication opportunities for the neighborhood.
The traditional villages in area of the Yangtze River contain courtyards of every household, and places where the villagers gather. For example at the well, on the steps for public laundry by the water, under a big tree, or in the family temple etc.
The space sequence from private to semi-public, then to public, reflects people's work and daily life. These spaces became also the social links for the people. Unfortunately these villages have disappeared in the process of urbanization in Nanxiang.
In order to embody and restore the traditional spatial context in modern architecture, we have lifted the courtyards with traditional scales to the air, connected with large stair steps, extending to the ground.
Several small courtyards enclose a large courtyard, organized like an old village. The sky square has the scale of a traditional village and provides space for communication and gathering.
Going up the big stair, you can pass through several green platforms. In the sky courtyards, there are small library, tea rooms and other spaces for neighborhood activities. In lower floors, there are room for health centers, gymnasiums, community organizations, in which all functions are connected by a veranda. In the underground a supermarket is planned for the surrounding residents.
Though the Community Center Nanxiang is a four-story modern building, the spatial identity is consistent with the traditional villages. Only the courtyards are lifted from ground to the air, so we called it a “Sky Village”.
▼项目更多图片
客服
消息
收藏
下载
最近

































