查看完整案例


收藏

下载

翻译
Architects:Margen Wigow arkitektontor
Area :120 m²
Year :2018
Photographs :Åke E:son Lindman
Manufacturers : SchcoSchco
Country : Sweden
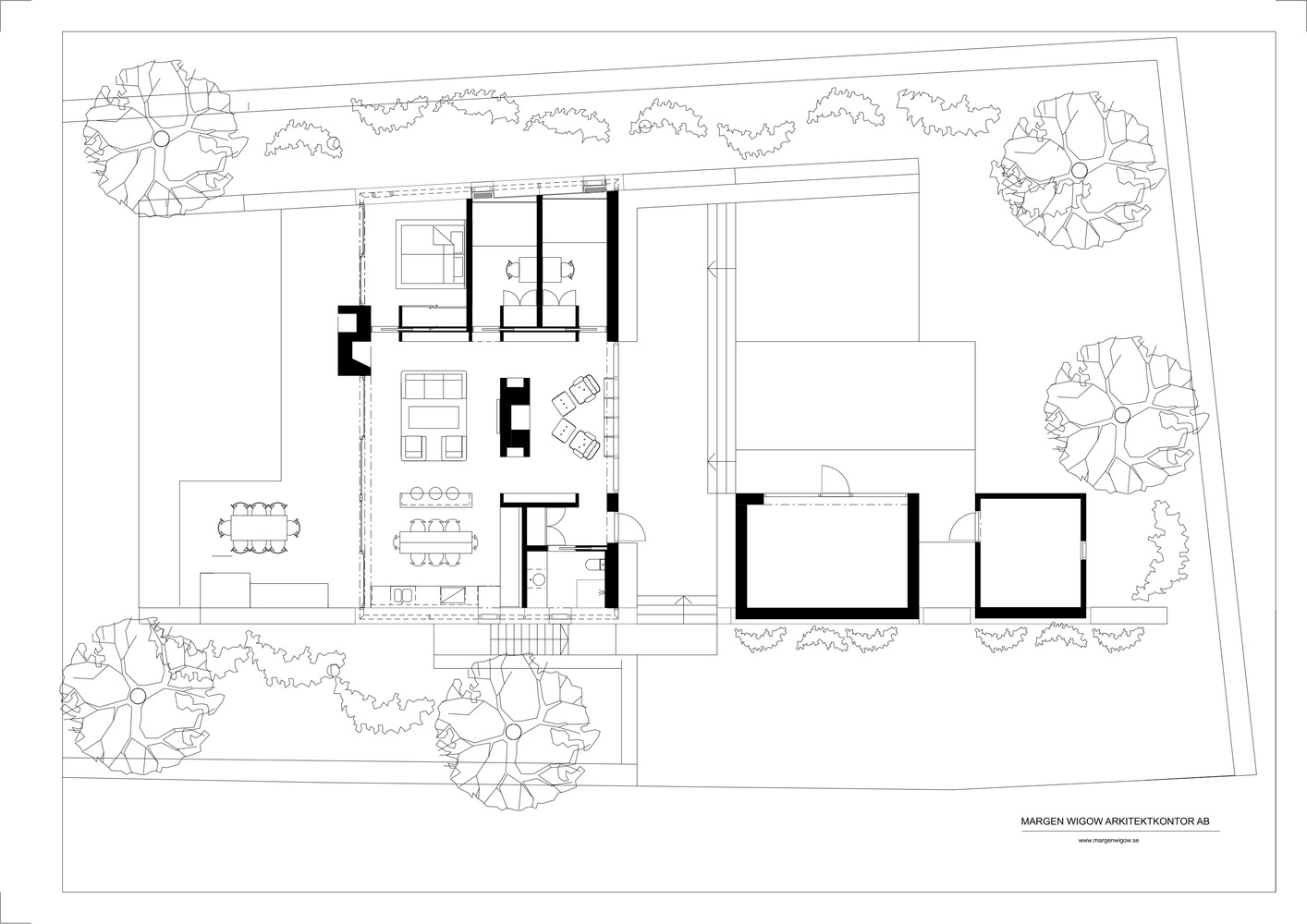
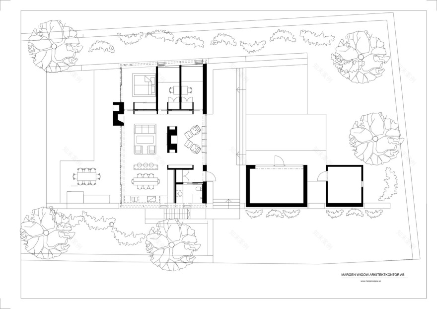
Holiday home on Öland. The summer house is located on the island of Öland in southern Sweden. The islands barren and windswept landscape with vast fields, low vegetation and limestone formations have inspired the design of the building.
The limestone walls and the extended roofs protect against weather and wind and the large glass sections take in the view of the sea and the landscape outside. The limestone comes from a local stone quarry and has the same color as the surrounding limestone slabs.
Wood panels on the outside are especially sawn and untreated so they over time will have the same gray color as the stone. The terraces are made of concrete. On the inside the floors are of concrete and the carpentry and wall panels made of ash.
▼项目更多图片
客服
消息
收藏
下载
最近























