查看完整案例

收藏

下载

翻译
Architects:Node Architects, Nous Architecture, Rasa Studio
Area :5500 m²
Year :2018
Photographs :Yercekim Architectural Photograph
Lead Architects :Rasa Mimarlık, Node Mimarlık
Mechanical Engineering :G Engineering
Electrical Engineering :Cakirtek Engineering
Acoustics :Karakutu Acoustic
Lighting :Studio Lighting Design
Design Team : Cihan Sevindik, Doğan Türkkan, Tuna Han Koç, Zeynep Canan Aksu
Static : Akinci Engineering
City : Antalya
Country : Turkey
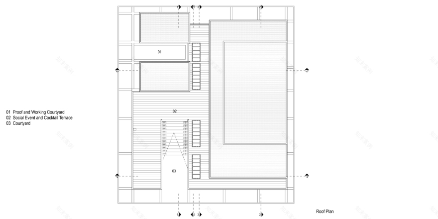
Context - Antalya has a Mediterranean climate and this climate affects people’s daily routine and human ergonomics. Because of the climatic conditions, socialization is happening after the sunset. So it is indispensable to preserve the trees in the competition area and design the building as a sunshade.
The competition area is in the middle of the medium-density housing zone. Therefore the purpose of the design is to attract the users to the area, not only for the main course of the building but also for socializing. İt is preferred that the organizing of the building and the landscape is permeable and flexible for that reason.
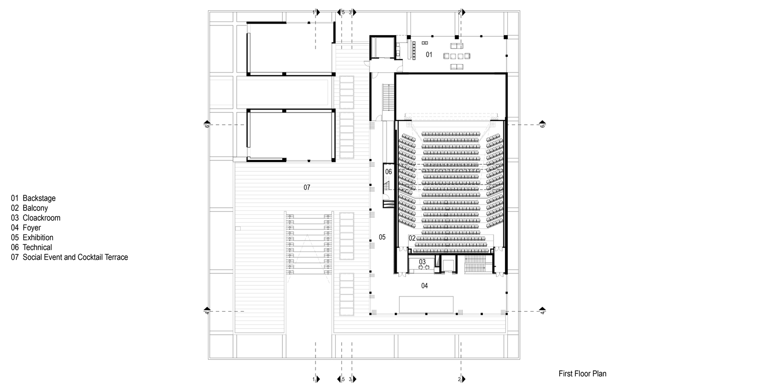
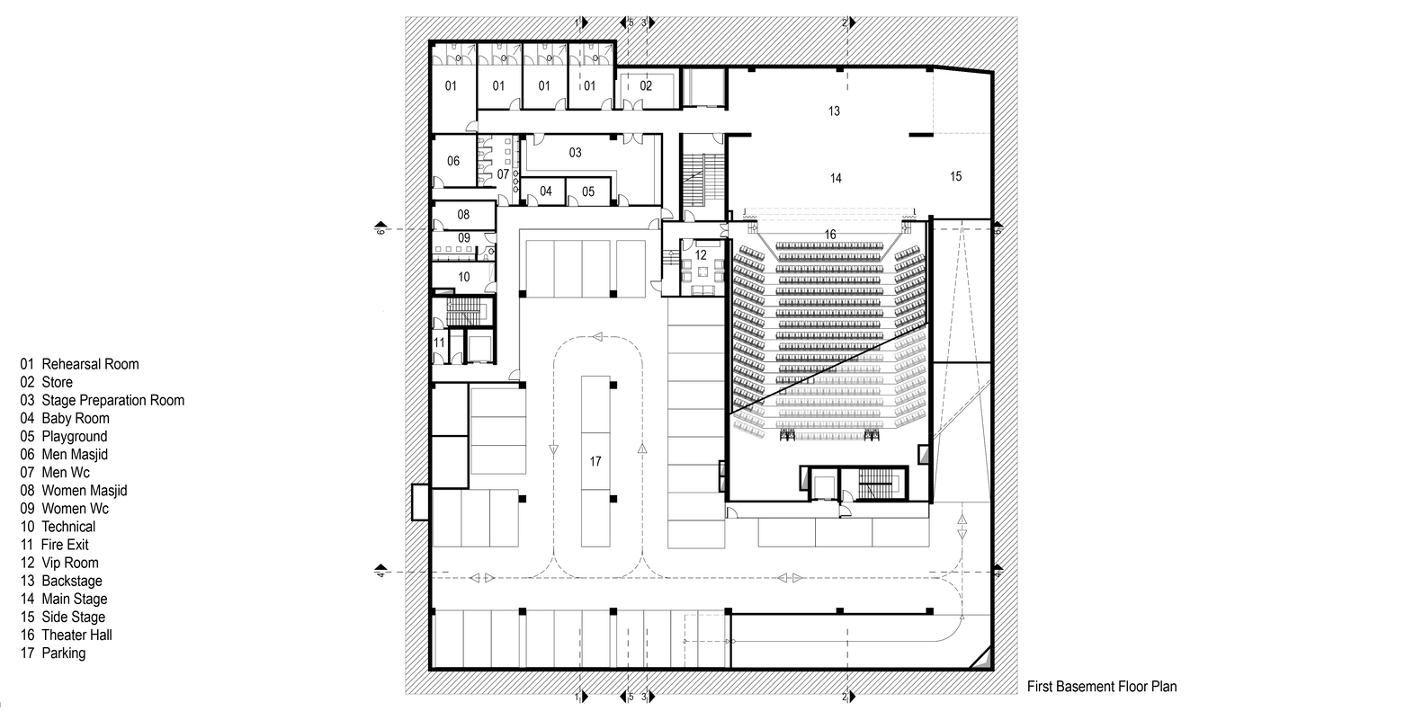
Designing - Multi-purpose Performing Arts Hall became the dominant unit in the building because of its acoustical and other needs. The hall is supported by an orchestra pit, stages, and technical rooms. So it’s optimized for any other activities. The foyer, workshops, and rehearsal rooms are open to ‘’Art Street’’ which connects the users in the park and all functions in the building. A restaurant, an observation platform, public areas, and courtyards are designed in order to use the building day/night and in summer/winter.
Courtesy of the terrace and walking platforms, the building can be used not only on the ground but also on different levels. So a sustainable design is created with a foyer along the park, the ’’Art Street’’ and the open spaces which connect the users and environment.
▼项目更多图片
客服
消息
收藏
下载
最近














































