查看完整案例


收藏

下载

翻译
Architects:HEIMSPIEL architektur
Area :370 m²
Year :2018
Photographs :Leonhard Hilzensauer
Manufacturers : Focus, Griesser, JoskoFocus
Engineering : Christian Petz
Design Team : Gisela Mayr, Julia Stoffregen, Stephanie Lindmayr
City : Deutschkreutz
Country : Austria
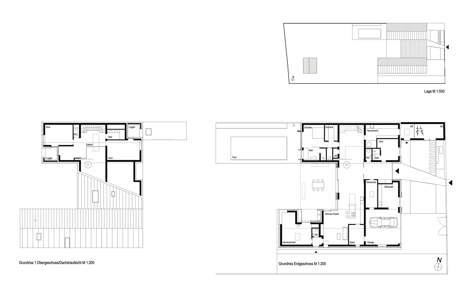
Design of a single family house in Burgenland, Austria. A saddle roof was a strong requirement of the town development plan. The project is reacting to this requirement with a new interpretation of the classical saddle roof in shape of an asymmetric multiple folded roof.
An U-shaped floor plan is organized in 3 “wings”, the different room heights are united under the folded roof and define the distinctive geometry. In respect of the traditional Burgenland town-character the house is presenting itself closed towards the street and opens up generously in shape of an atrium house to the backyard and garden.
There are no strict borders between inside and outside – it is a smooth and floating transition. Also the inside is designed to be an open and light-flooded living concept. Foyer, living room and kitchen are one continuous living space and define the heart of the building. The folded roof is defining the different zones and at the same time joining them as one unit.
A library staircase is leading to the first floor open gallery and the children rooms. The void allows attractive visual sights between the two floors but maintains at the same time a feeling of privacy between the generations.
The facade material is a rough-saw and pre-weathered grey larch shiplap shuttering – two different sizes divide the face. Folding and sliding sunscreen elements out of larch-shutters can be moved to change the buildings face and in/outsights due to the demand of the owners.
▼项目更多图片
客服
消息
收藏
下载
最近























