查看完整案例


收藏

下载
设计100 筑巢奖作品 在古朴与自然的气质共存的青城山设计一个包含现代、前卫元素的家打破“视觉统一”在幽清的青城沐浴加州的阳光矛盾且有趣,让人期待。 屋主一家的融洽与活力像极了加州本身斑斓的色彩。与他们一家相处的过程中,能够时刻感受到这个家庭之间的包容与珍爱,温暖如光。加之一家人对自然和花草的喜爱也让设计师决心要为他们设计一个可以亲近自然的度假房。
为了使整个空间达到流动、通透的效果,利用建筑的原始结构将一楼的所有门窗进行重新设计,使用可折叠黑色金属的玻璃门窗让空气与光在室内流通。在门窗完全打开之际,整个一楼的室内是可以完全与外部花园连接,让屋主在家里享受这份青城山的静谧。
在这里不仅是满足居住,而是一次身心的逃离和穿越。 玄关 Porch
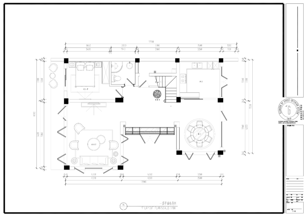
玄关处向外延伸,加宽门厅使其更大气。弧形玻璃门再次增加了室内光线。地面的拼接黑白石材与两侧木地板形成视觉上的鲜明对比,增加时尚氛围。主视觉以花为饰,搭配镜面 Zieta PLOPP 椅子,成就空间梦幻与精致感。 客厅 Living Room
客厅位于门厅左边,设计师将室外景观与室内感受融为一体。两侧推拉玻璃门打开可直接与花园相连。米白色的主沙发搭配不同的侧椅,让整个空间有趣不单一。在客厅随时可以享受户外微风吹进,花园的流水潺潺,静享美好时光。 餐厨 Dining - Kitchen
门厅的右边为餐厅和厨房,全透明的玻璃将厨房与餐厅分割,纯黑色的橱柜配以金色拉手,将美式风格贯彻到底,墙面上的西班牙进口瓷砖复古又耐看。从厨房走出便是餐厅,三面通透的环境让人在用餐时也能瞥见室外的风景, 赏心悦目。 长辈房 Seniors Bedroom
为了方便家中老人起居,一楼客厅旁设计了卧室避免频繁的上下楼。房间与室外接壤,玻璃窗外是郁郁葱葱的花园,室内是禅意满满的竹林。每天醒来拉开窗帘,眼前映入的美景便是起床的动力。 楼梯 Stair
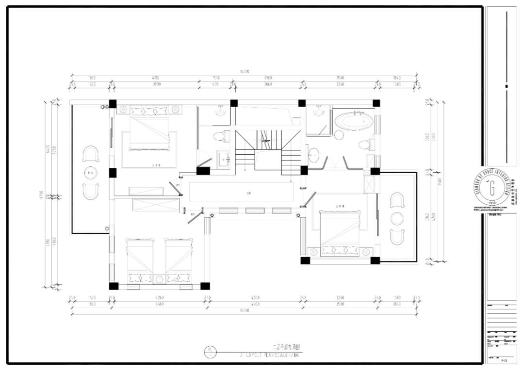
楼梯在层层递进的过渡与转折中,描绘出自由包容、生动空灵的境地。由上自下的空间恰好为吊灯提供舞台,构成错落趣味的造景;这其中也包含着对上下一体的呼应与考量。 主卧 Host Bedroom
为了使室内与自然相通,床和衣柜都选择了竹编元素来与室外相呼应。
右边主卧采用完全开放卫生间,将度假之感巧妙融入其中。浴缸墙面的意大利定制墙画让整个空间栩栩如生。金属镜面浴缸映射出地面瓷砖的纹路,艺术感十足。 儿童房 Childrens Bedroom
圆形是人类一早感知到的图形之一,有诸多美好的寓意。把这份美好和童趣放进了两个小公主的房间里,所以这个房间充满了圆形元素。房间一侧用玻璃砖砌起来的墙面恰到好处的把自然光引入,透过玻璃砖看到花园,有种梦幻的美。 露台 Terrace
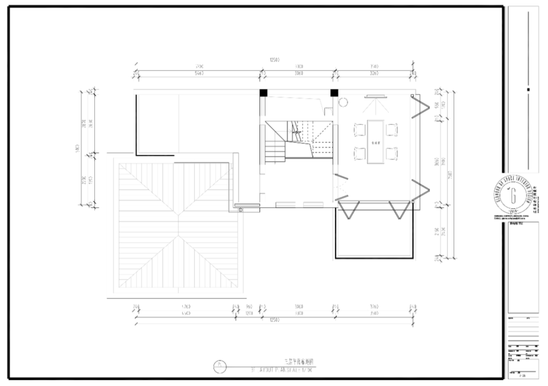
在房屋的顶层搭建出了一个多功能的休闲区域。一家人可以在这里阅读,看电影,玩游戏,或是健身。这个房间的窗外便是绿幽的山峰,抬眼便是画中的景致。 庭院 Courtyard
“春有百花秋有月,夏有凉风冬有雪”于一方花园天地,便能坐拥四季的美好。花园采用了半下沉式,与水景相结合,未来将会是家庭聚会使用率很高的区域。户外的花园有水景和高低错落的路径。夜晚坐在花园里倾听流水,灯光映射在波光水面,房屋灯光下精致的家具与装饰,让人暂且忘却所有生活的烦忧,心无杂念地享受假期、欢度片刻光阴。
客服
消息
收藏
下载
最近































