查看完整案例

收藏

下载
老房子空间的尺寸都不大,格局也很受限,为了进出换鞋及拿放东西便利,将进门的右手边都做成了鞋帽区。
墙面及天花都是白色浮胶漆,边天花吊顶也是平顶,说起吊这个平顶是有原因的,由于房子的天花原有批荡已有几块已经掉了下来,很多地面也是松动的情况下,为了安全起见,把松动的都铲掉后,整体下吊一层板,把灯做了内钳式的筒灯。
为了小孩子能在客厅有个空地尽情的玩乐,前期就不考虑放常规的茶几先了,在沙发边放了一组组合柜,多变好用。
入户鞋柜
餐厅的餐桌考虑可以两个方式的放置,平时3口之家就平放,偶尔父母过来看孙子时就把餐桌转个90度,就成了5人位了。餐桌的尺寸及对应的墙面都是前期设计时就考虑到位,后期实现时就不至于有偏差。
简单但不随便,一切都源于对美的追求。
休闲区光线理想,在闲下的时光读读书的习惯一直保留着,也希望小朋友也爱上阅读,玩乐学习两不误。
主卧室空间
主卧室挂画
喜欢缝缝补补的女主专属空间~~~
人始终会成年,但不能停止成长!
学习练字有书桌
小朋友的专属空间
水箱入墙式马桶
喜欢原木色,喜欢就让它延续到厨房吧!
最后来张合照吧!剪力手~~剪力手!
原始户型图
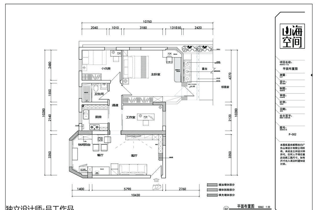
平面方案图
现场相片
现场相片
现场相片
现场相片
现场相片
现场相片
现场相片
客服
消息
收藏
下载
最近



























