查看完整案例


收藏

下载
一个人真正的幸福并不是待在光明之中。
从远处凝望光明,朝它奋力奔去,
就在那拼命忘我的时间里,
才有人生真正的充实。
—— 安藤忠雄
在接到委托之初,Original Design元谷设计尝试提炼水、木、石三种概念进行表达,通过朴素纯粹的自然木、黑凿石、玻璃、不锈钢等材质来构建整个空间。
设计师希望能够让人们最大限度地沉浸于此,穿山越林去寻觅一处真正有传承的日料食肆。
食与空间互通有无,是日料的精髓。设计师着力呈现出一种质朴的、幽微的、自然的、静寂的空间气质,与日料专注当下营造的场互为表里。气、色、声、香、光与影,任凭感官与内在察觉交织更替,沉浸游走于其间,使人变得平和宁静而放松。
空间入口以低调的尺度开篇,天花与墙面保留了原结构,墙板与地面又构成了新的呼应关系。迂回路径像是在过滤那些不安分的情绪,步入式的景观设置,转入第一重场景是回廊,让节奏感贯穿于行走体验中。
外厅和内廊分别赋予了“吟”和“隐”的主题,曲径通幽处,将所有的喧嚣都隔绝在外,开始享受当下的静谧与喜悦。
除了造境,动线的合理规划与精准布置,是设计的最核心价值所在。此间食肆整体格局扁长狭窄,大厅为寿司与铁板食区,保留了空间完整的通透性和视觉无碍。
空间利用植物、光的克制运用和天花不锈钢的反射,远近高低,变换着点、线、面的形态,实验性地丈量人与物的关系,人与人的社交边界。
层次丰富的灯源布置,能将漫反射的优势最大限度地发挥出来,柔化了室内的情绪氛围。在留白和食物的取舍里,见天地的广袤,识个体的渺小,感众生的悲欢。
3个包间分别以“木、水、石”作为概念,将每个包间独立开来,均靠近主要采光面,光影重叠构成画面。同时还设置了内通道,将大厅与包间区隔开来,既合理化了动线分布,又保证了包间内所需要的隐私感。各个房间以本身结构为界限内明外暗,灯光相互映射,独立而呼应。
山有木兮木有枝。以天然木枝做背景墙,每一根树枝的造型都独一无二,均来自大自然的鬼斧神工,空间层次感丰富,让人如置身林间山野,清新惬意。
高山流水,知音难觅。幸得知音,当浮大白。引入“水”的概念,因多种因素受限,设计师巧妙地用流水石对空间进行表达,此处无水,处处是水;此处无声胜有声。
明月松间照,清泉石上流。此间以“石”为名,精选山西黑凿自然面石材,兼具石之硬朗与庭院园林之静谧。引入原味、自然形态的绿植、山水画、红色瓷盘餐具点缀整个空间,让人不仅享受美食带来的满足,更能放松身心感受空间环境赋予的岁月静好。
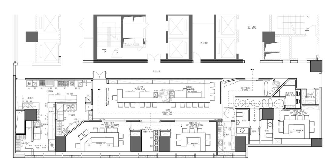
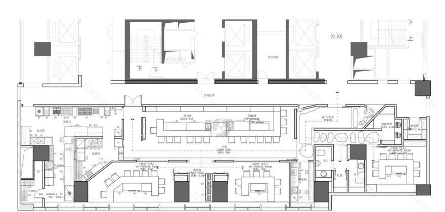
平面规划布置图
元谷設計-设计总监 许延波
客服
消息
收藏
下载
最近




























