查看完整案例

收藏

下载
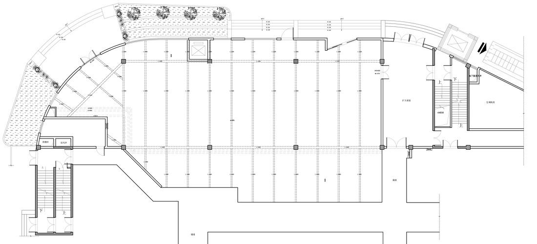
原始户型图;一楼展厅的位置很好,一侧是大厦的外立面,可以直接穿过展厅进入大厦内部,所以展厅本身位置是有先天的优势条件,这也是我们在设计过程中大大加以利用的一点,将地理位置的优势发挥到最大。
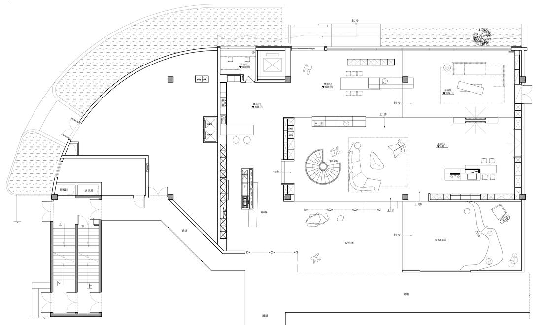
一楼平面;#厨厨味睞生活美学馆;展厅的外立面我们以现代科技感的造型呈现,与大厦和谐共处的同时亦凸显展厅的被关注度,在内部空间的规划上,我们是以游园式的思路打开,环式的开放动线来呈现,这样来客在逛的时候也不会落下某个空间,达到很好的展示效果。在布局上我们希望整个展厅是自由的、各个区域都是可以互相交流、开放的,所以整个大空间并未刻意的隔断来划分空间,而是一体通透的状态,在每个小空间内又加强其区域设计,使得这些区域之间虽相互联系却也各得其所,打造一份良好的观感体验。
负一层平面;#餐厅;在当代饮食中,虽然食物本身的味道是第一位,但是一个好的就餐氛围已然是必不可少,餐厅就餐更是享受的一份意境;负一层的餐厅全部设立包间,每间房间的配置都不相同,布局设计各有其特色,都取之有山水之意,给予食客别有风味的就餐体验。
效果图;关注我们的友友们都知道,我们的落地效果一向是高度还原效果图的,本次的展厅项目亦是。因为是商业空间,吕先生希望以最快速度完工,从设计到施工,前前后后5个月的时间,设计部与施工部的密切配合,让展厅得以完美落地。
实景图;身处设计繁多各异的商业场所,要脱颖而出势必依托对外的第一印象,我们以大胆新异的造型构画,椭圆、U型、线条的延伸、触角的锐利形成强势的情绪表达空间,以开放而又自立的姿态载有大家风范。
由商场内部进入展厅的入口做礼让的后退空间,是内外之间的过渡,也是一端灯具展示空间的窗口与通道。
一侧的灯具空间,并没有完全对外开放,而是和入口的开放姿态形成一开一合,做到松弛有度。以一个椭圆形窗口的姿态,拉近内外的距离,既有了展示的效果,又做到克制有章。
展厅整体空间色彩上我们选用经典的黑白灰色调,没有特别出彩的颜色,避免喧宾夺主,凸出产品本身的特色,让每个产品本身具有场景化色彩,弱化空间上不必要的装饰,让空间背景化,凸出场景的主角是展品。
身处一楼的展厅可经由此左前方的入口出入商场,结合空间本身对外开放性的优势,展示区我们并没有集中限制在某一个特定区域,而是以环绕型的闭环形式分布在各个位置,既有趣味的游园式体验,也利用不同的视角对外进行品牌展览。加之多入口通道的优势,可以随时开启展示模式,完美呈现展厅的初衷。
此区域的地面选用的是黑色抛光砖,顶面选用黑色涂料,中间岛台部分用白色涂料刷白,整体通白凸出强调对比关系,抛光砖的镜面效果让白色的体块如同浮在水面上的白船,白色的体块置入场地之中,承载整个空间更显轻盈。
效果图;
实景图;餐厅的入口位于展厅的C位,入口的顶部以红色的斗笠造型装饰,中心位加上瞩目的颜色,无论从展厅的哪个位置进来,都可快速找到餐厅入口。
餐厅入口顶部形似斗笠状的吊顶,如同楼梯的帽子,进入时会给人压迫感,进去之后内部有镜面不锈钢的装饰,给人豁然开朗的感觉,通过层次的变化给予食客不同的体验,站在餐厅楼梯底部往上看这个“帽子”,有看万花镜的感觉,体验感十分丰富。
在连接餐厅与展厅的楼梯口旁,设立休息区放置了一组沙发,在这个位置设立休息区不仅是为了服务于来访展厅的人,也是服务于食客的休息停留空间。此处的中心位几乎可以看到展厅的全貌,来就餐的人在此休息也可以看到展厅的产品,为产品的售卖合作增加潜在客户的可能性。
在餐厅入口的楼梯一侧,摆放了一面酒水收纳展览柜,既是品牌产品的输出,也为即将进入的餐厅营造其氛围,暗示即将进入餐饮区。
入口顶部不止是装饰,内部设有灯光,暖黄色的灯光射入楼梯内部,刚好的光感将照明与氛围感平衡的很好。
我们将建筑内置化,在空间中央置于形式,通过体块的穿拆和台阶增加空间层次感和空间体量,如同搭建舞台一样,通过不同高度的层级关系将空间分为三个不同高度的区域,中间至高点便是通往下层餐厅部分的主要通道。
此区域在展厅的一角,规划为会客洽谈区,为了强化它本身的空间独立感,与其他区域划分来,我们利用地表的高低差来呈现,跨一步台阶就可以到达洽谈区,可不要小瞧这一步台阶,利用生理感受上的细节很好地给空间做了界限。
右侧做了一个“悬浮墙”,内嵌电视用作洽谈展示,电视再下面没有将墙体连接到地面,而是留空保持空间的通透,也更有设计的形式感。一面电视墙,一个台阶,将洽谈区的空间独立开来。
效果图;
实景图;下至负一空间的交通构件我们选择以螺旋转踏步楼梯代替电梯以及传统的步梯,更具庄重的仪式感;以沉稳的金属色营造隆重、华贵的空间气质。
楼梯内部我们用嵌入式灯带增加其亮度,瓦数不会过高营造的氛围光感刚刚好,给足了进入餐厅的仪式感。
餐厅楼梯的这块顶部,我们用大量的球体固定在上面,悬浮感的样子打造一个浪漫而又沉稳的空间,再次加强进出的仪式感。
对于空间的光感上,我们有用心布局,在楼梯的入口处底部,整个餐厅走廊的两侧都嵌入灯带,微醺的光感营造空间半遮面的氛围。
效果图;
实景图;此处为餐厅的接待区,接待区在空间色彩上以白色、金色为主,灯光亮度也有所加强,与周围的走廊空间形成适度反差,凸出它的存在感,提高服务食客的便利。
接待区的顶面用形似波浪的造型装饰,轻盈、灵动的姿态跳脱这个灰色空间带有的一丝沉闷,调节空间气氛,视觉感受上的起起伏伏十分有趣。
房间内大幅装饰画的逼真效果,很有山水画的烟雾缭绕之感,仿佛坐落云深之处食肴浆,甚至会忘了此时是在地下空间,利用视觉认知上的错觉化挑逗,营造惬意的就餐意境。
效果图;
实景图;每个房间大小不一,设计造型也不一样,这个包间是整个空间最大的 15人桌,也有容纳6人的小包间,8人的包间等等,满足不同人群的需求。
这个房间的入户玄关引用古典元素,一扇圆、一把松,利用精简的手法刻画极有意境的空间形式。
餐桌一侧设置了饮茶区,上面的吊灯和餐桌上方的灯像是几把伞堆叠而成,来这山峦云烟之间漫步,整个空间元素连接有序在讲述一个着有意味的故事。
这个包间的装饰画非常逼真,有踏入水帘洞的即视感。每间的装饰画都是我们精心挑选制作的,逼真的效果让人不自觉就产生空间穿越的错觉。在这个房间的顶上加入了镜面效果,延伸空间纵深感,身至其中观感更棒。
这个是8人桌的包间,两个房间中间没有用实墙,而是可以推拉的隔断,这样在有多人聚会时可以把中间的隔断拉开,吃饭聊天都可以在一个大空间内。
这个空间以咖色为主,虽然每个包间的装饰都不一样,但是都可以从中联系到一个主题,那便是自然之物,山、水、植物。虽各自独立但也在暗暗呼应空间的主题。
客服
消息
收藏
下载
最近












































































