查看完整案例

收藏

下载
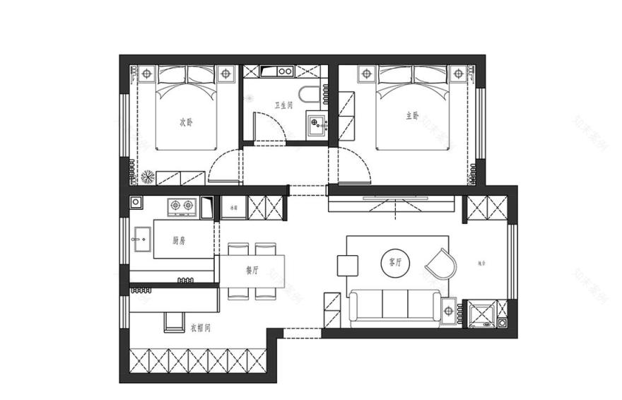
· 本案是一个精装房重置的项目,当下的居住诉求是,满足一个人的日常生活和办公休闲即可,偶尔会有父母来小住。而原户型的三居结构对于业主来说有些空间处于闲置浪费的状态,因此在布局上我们做了一些调整,以满足当前的使用场景为主要考量,提升整体的居住舒适度。
实用主义、极简主义、不需要过多的色彩、简单的元素构成,这是设计之初业主所希望呈现的家的样子。因此本案以经典的黑、白、灰作为主基调,加入原木色来调和空间温度,并多次运用长虹玻璃、水泥漆等元素来呼应空间干净秩序的氛围。
水泥漆与白墙漆做拼接,同色系的沙发、地砖,灰白的色调统一感让空间内的事物融于一个整体,展现静态的舒适。
“保持完整统一和尽可能的简洁实用”是设计的初始目的。所以内嵌、磁吸、按压,成为空间的表现手法。除了色调和纹理的统一,家电做内嵌,柜子统一定制且内藏自动回弹,目光所及之处的墙面依旧是完整的。
整个客厅采用了无主灯设计,受层高限制,边吊和超薄吊顶的结合,让客厅在满足预埋磁吸灯带的同时最大限度减少压低层高,视觉上的顶面依旧平整且具有实用性。
线条感和块面分割的穿插,用大块面的木纹饰面来调和灰白的清冷,让家更有温度。层次、纹理、触感,使得空间松散有序,不过度拥挤。
餐厅区域保留了大体量的灰黑重色,并通过定制和精准的测量,来达到整个空间的足量利用,考虑到层高,餐厅和书房空间没有做吊顶,节省开支也是合理安排空间使用效果。
明装吊灯,用餐更有氛围感。定制餐边柜和冰箱外移,减少了厨房的储物压力,两个空间的联系也更加紧密。带有工业质感的餐桌椅来自于北欧表情,简单有细节,与线条明快、干净秩序的空间呼应。
原本厨房旁的小次卧对于业主来说实用意义不大,打开后改为书房和储物柜,实用性更强。
竖条纹的长虹玻璃替代了墙和门,增加了餐厅的采光,视觉上也更开阔通透。深色哑光的烤漆柜面在空间中的穿插起到了柔和的作用。
开放式书房兼具入户收纳和存储的功能
主卧室的色彩与客厅的灰白色调一致,水泥艺术漆的肌理感让空间层次更丰富。
不对称的床头灯给了墙面更多的视觉变化。床头墙壁的加宽设计内嵌灯带,既有氛围感又能做储物,简洁实用。
次卧是给偶尔来小住的老人准备的,不同程度的灰,深色木质的边柜,将整个空间映衬出沉稳的成熟感。
卫生间以大理石为主素色简约,一整面的黑色马赛克砖和精准的尺寸切割秩序感十足。隐藏式储物和壁龛设计保证了空间的整洁和卫生。
# 户型改造:
① 原户型的三居对于目前独居业主来说并不实用,因此设计将入户处次卧打开改为开放式书房,同时增加一部分存储,满足入户收纳。
② 原来餐厅空间很局促,打开次卧后有明显改善,纵向空间拉大后我们在靠墙的夹角处增加了一组定制餐边柜,内嵌冰箱,扩大收纳存储能力,整个空间也更舒展。
③ 保留的次卧父母偶尔会过来住,空间需求不大,因此我们内推次卧空间将卫生间扩大,扩充后的卫生间有了更多的储物。
客服
消息
收藏
下载
最近































