查看完整案例


收藏

下载
我们想要呈现一个超越真实的空间,将韦斯·安德森的电影美学发挥到极致。
We want to present a space that transcends reality and maximizes Wes Anderson’s film aesthetics.
▼项目概览,overall of the project
幻想 DREAMY 线条可以界定事物,再现空间。始于入口的洞穴设计,还原了岩壁的原始质感,顺应空间线条的弧度连接各个空间区域,从设计的角度构建出我们幻想中的空间形态。
Lines can define things, and present the space once again. The cave design that starts at the entrance restores the original texture of the rock wall, connects the various spatial areas with the arc of the spaceline, and constructs our imaginary space form from the design perspective.
▼入口采用洞穴设计,还原了岩壁的原始质感,The entrance is designed as cave, restoring the original texture of the rock wall
▼顺应空间线条的弧度连接各个空间区域,The curvature of the spatial line connects each spatial area
可自由转动的镜面装置,安放于韦斯·安德森的色彩美学空间中。当人身处其中,镜面装置互相影响、折射,多个自我形态在镜面中出现,就此开启一段寻找真实自我的旅程。
The freely rotatable mirror device is placed in the color aesthetic space of Wes Anderson. When a person is in it, the mirror devices influence and refract each other. Multiple forms of self appear in the mirror, which starts a journey of finding the truth of ourselves.
▼通往二层酒吧的楼梯,staircase leading to the bar
▼洞穴窗口,curved window
▼可自由转动的镜面装置
The freely rotatable mirror device
平衡 BALANCE 简单而丰富,人为却自然。大量云朵般的圆弧结构,包裹着空间,桌椅和灯具如气流般排列其中。“千禧粉”异型吧台,打破空间既定感,与整体空间造型相互交融,浪漫且温柔。
Simple and rich, artificial but natural. A large amount of cloud-like arc structures surrounds the space, with tables, chairs and lamps arranged in an airflow. The “Millennial pink” special-shaped bar counter breaks the established sense of space and blends with the overall spatial shape, romantic and gentle.
▼“千禧粉”异型吧台,The “Millennial pink” special-shaped bar counter
▼围绕柱子的等候座位区,The waiting seating area around the pillar
▼大量云朵般的圆弧结构,包裹着空间,桌椅和灯具如气流般排列其中,A large amount of cloud-like arc structures surrounds the space, with tables, chairs and lamps arranged in an airflow
▼大量弧线与圆形窗口营造梦幻感,A large number of arcs and circular windows create a sense of dreaminess
▼主要餐厅空间与洞穴入口的自然衔接,natural connection between the main dining space and the cave entrance
在工艺和材料上进行深入探索,去实现云朵柔软、流动的视觉感受。随着白昼时刻的更替,整体造型通过光影变化,空间得以呈现出更加丰富的视觉效果。
In-depth exploration of craftsmanship and materials to achieve the soft and fluid visual experience of clouds. With the changing of hours, the overall shape changes through light and shadow, and the space can present a richer visual effect.
▼云朵造型天花板细部,details of the cloud shaped ceiling
梦境
WONDERLAND
陷入梦境,沉醉其中。顺着蜿蜒的建筑线条将视线聚集到楼梯最高点,推开车厢门,进入酒吧业态。色彩与光线的视觉感受变化,引发观者对空间的遐想。
Fall into a dream, indulge in it. Follow the winding structural lines to gather the sight to the highest point of the stairs. Pushing the car-like door, and enter the bar format. The visual perception of color and light changes, triggering viewers to reverie about space.
▼二层酒吧整体概览,overview of the bar on the second floor
▼形似售票窗口的马赛克吧台区,mosaic bar shaped like a ticket window
▼由散座区看吧台,viewing the bar area from the seating area
▼由马赛克吧台看车厢式的半开放包间,viewing the semi-open compartment from the bar area
内部空间提取车站元素,运用大面积的复古绿配色,将站台与列车贯穿在空间之中。无法始终产生交集的两个元素,在这里定格并有所关联,相互融合在空间之中,带给观者视觉上的沉浸体验。
The interior space extracts station elements and uses a large area of retro green color scheme to penetrate the platform and trains in the space. The two elements that cannot always intersect are fixed and related, merged in the space, and giving the viewer a visually immersive experience.
▼位于吧台与车厢区之间的站台散座区,the scattered seatingsin the platform area in front of the train
▼内部空间提取车站元素,The interior space extracts station elements
▼大面积的复古绿配色,large area of retro green color scheme
酒吧空间划分为三个区域,形似售票窗口的马赛克吧台、站台区的散座、车厢式的半开放包间。将时间拉回到过去,美好而又纯粹。列车中部设置场景区,制景还原列车长休息室,让观者仿佛置身于韦斯·安德森的电影美学空间中。
The bar space is divided into three areas, a mosaic bar shaped like a ticket window, a scattered seat in the platform area, and a semi-open private room in a carriage style. Bring time back to the past, beautiful and pure. A scene area is set in the middle of the train, and the conductor’s lounge is restored, making the viewer feel like they are in the aesthetic space of Wes Anderson.
▼整体布置仿若韦斯·安德森的电影美学空间,The layout resembles the aesthetic space of Wes Anderson
▼车厢式的半开放包间,semi-open private room in a carriage style
▼制景还原列车长休息室,the conductor’s lounge
▼包厢内部,interior of the semi-open private room
距离现实仅仅五步之遥,我们穿梭在未来与过去,惊喜与想象不断更替的感官空间,把不同的消费业态融合于一体,予以观者跳脱真实的异想空间。
Only five steps away from reality, we shuttle between the future and the past, the sensory space where surprises and imaginations are constantly changing, integrating different Consumption formats into one, allowing viewers to escape from the realistic and fantastic space.
▼分析图,diagram
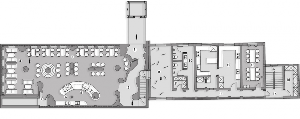
▼餐厅平面图,plan of the restaurant floor
▼酒吧平面图,plan of the bar floor
项目名称:16HOURS 餐酒空间
设计方:ARSOO Design
主案设计:陈木子
协同设计:张诗源
设计团队:王海波、桂昊、章程
项目设计 & 完成年份:2021 年
项目地址:成都市锦江区宏济上路 56 号 16hours
建筑面积:522㎡
摄影版权:形在空间摄影 Here Space 贺川
客户:16HOURS
客服
消息
收藏
下载
最近






























