知末
知末
创作上传
VIP
收藏下载
登录 | 注册有礼

北京侘寂风民宿 1#丨中国北京

2022/07/08 00:00:00
查看完整案例
微信扫一扫
收藏
下载
北京侘寂风民宿 1#丨中国北京-0
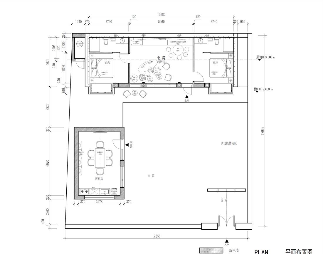
1#院平面布置图
北京侘寂风民宿 1#丨中国北京-2
北房中间为民宿客厅兼起居休闲区域,保留原建筑老房梁及老砖北墙
北京侘寂风民宿 1#丨中国北京-4
客厅兼起居休闲区域,将原来的木制门窗改为断桥铝落地门窗,开阔视野
北京侘寂风民宿 1#丨中国北京-6
东客房保留原山墙老砖结构装饰
北京侘寂风民宿 1#丨中国北京-8
东客房+开放式卫生间
北京侘寂风民宿 1#丨中国北京-10
东客房开放式卫浴区
北京侘寂风民宿 1#丨中国北京-12
西客房,设计飘窗延展扩大室内空间,增加一个休闲区域
北京侘寂风民宿 1#丨中国北京-14
西厢房设厨房+餐厅功能
北京侘寂风民宿 1#丨中国北京-16
西厢房设厨房+餐厅功能,设落地门窗
南京喵熊网络科技有限公司 苏ICP备18050492号-4知末 © 2018—2020 . All photos and trademark graphics are copyrighted by their owners.增值电信业务经营许可证(ICP)苏B2-20201444苏公网安备 32011302321234号
客服
消息
收藏
下载
最近