查看完整案例


收藏

下载
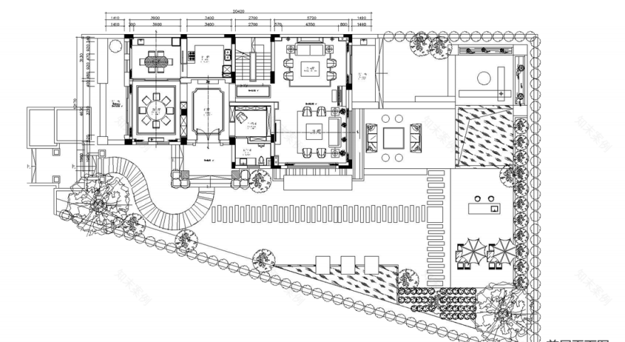
本案的装修走的是充满着奢华与浪漫的欧式风格,展现着主人的优雅古典的气质。欧式古典风格总能给人带来一种豪华之感。居住在这样风格的住宅中,不知不觉给人一种古代皇室的感觉。细致的做工、精美的雕花、齐全的配置、典雅的花纹,整体设计打造出大方、高贵的味道,讲究人性化的设计,给人呈现出大气沉稳和典雅高贵的气质。。。
步入玄关,心情愉悦。硬朗大气的欧式风格玄关,作为全屋风格的“印象”,充分体现出主人的文化气质内涵及高尚的社会地位。玄关兼具使用及精神功能,作为展示家居风格定位的重要区域,通过匠心的设计艺术表达
成为体现主人性格和爱好的直接方式
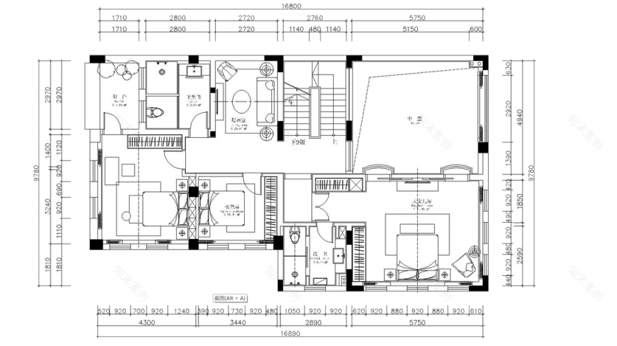
客厅在家居空间中,承载着一家人的喜怒哀乐
也是全屋空间中表达居者文化底蕴的重要场所。所以,关于客厅的设计语言往往会是浓墨重彩,所有的高贵、典雅、和谐、舒适,都与之相关,硬朗的线条,通透的空间,考究的家具,灵动的饰品,和谐的配色,舒适的灯光
……
背景墙使用浮雕是整面墙设计,艺术吊灯和挂画的点缀,已经将整个客厅的艺术气质展现的淋漓尽致
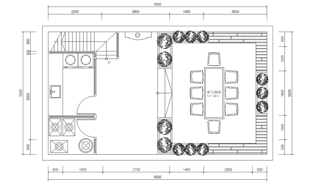
欧式餐厅设计体现了艺术之美更彰显了端庄典雅的贵族气质。餐厅空间的布局构造较为规整,色彩的选择大体淡雅,营造了高端宁静的氛围,欧式生活的大气体现的淋漓尽致
连厨房都以一种雍容、华贵的姿态,传递着居室主人高雅的审美情趣和极富贵族文化底蕴的生活态度。量身定制的奢华空间,带来欧式宫廷优雅尊贵的生活感受,一圆城市新贵的宫廷贵族梦
豪华的淋浴间、金色的五金元素、方形的镜子、
白色圆形大浴缸等处处都呈现出对生活细节的推敲
任时光流转,唯有尊贵与浪漫恒久相随,历久弥新。本案设计营造出的典雅臻美、优雅大气的氛围。让人感受到家的卓尔不凡,高贵出众
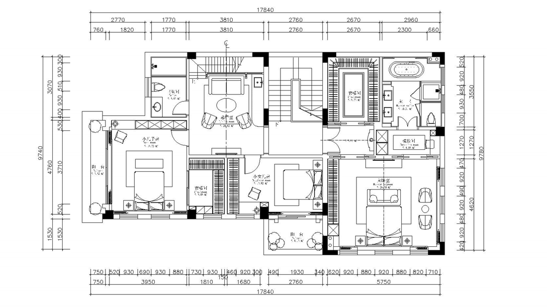
卧室整体空间设计中,提取“浪漫”、“优雅”、“精致”等法式文化和美学的精髓。以浅淡的精致叠加深厚的底蕴,用精致贯穿整个空间
用设计触发每一个美好的瞬间,谱出生活的无穷魅力,高雅奢华的经典贵族气息悠然荡漾。在这场视觉盛宴中,感受家的卓尔不凡
客服
消息
收藏
下载
最近














































