知末
知末
创作上传
VIP
收藏下载
登录 | 注册有礼
知末案例   /   娱乐空间   /   养生馆

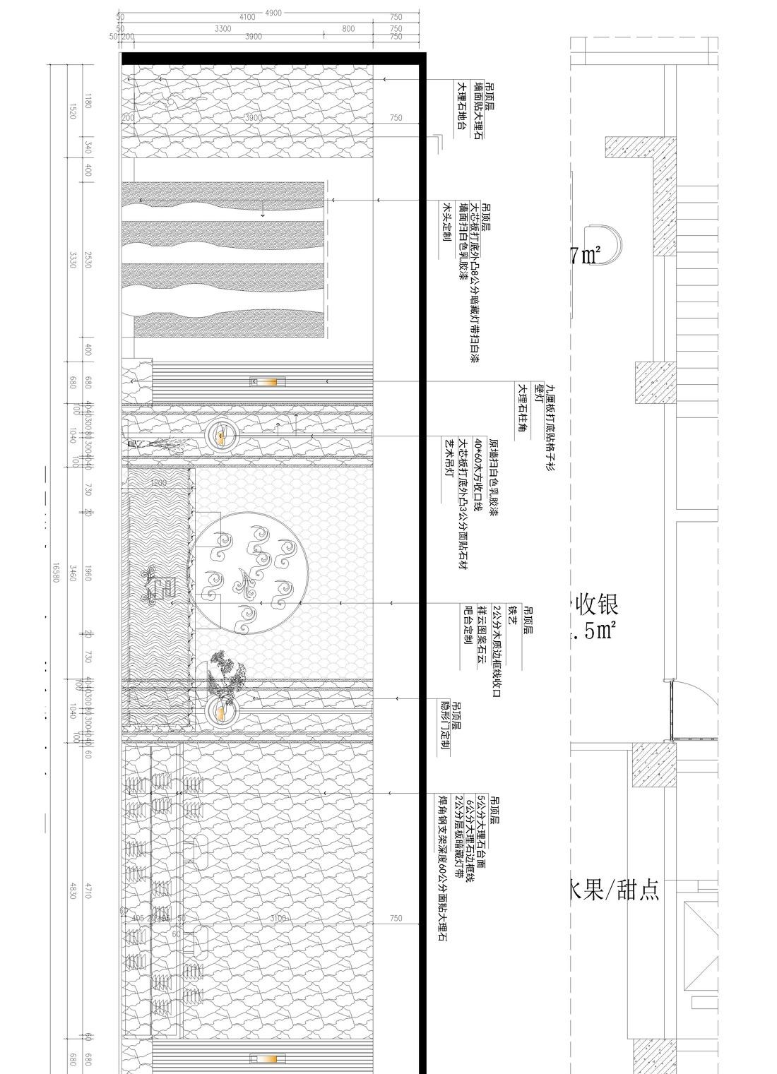
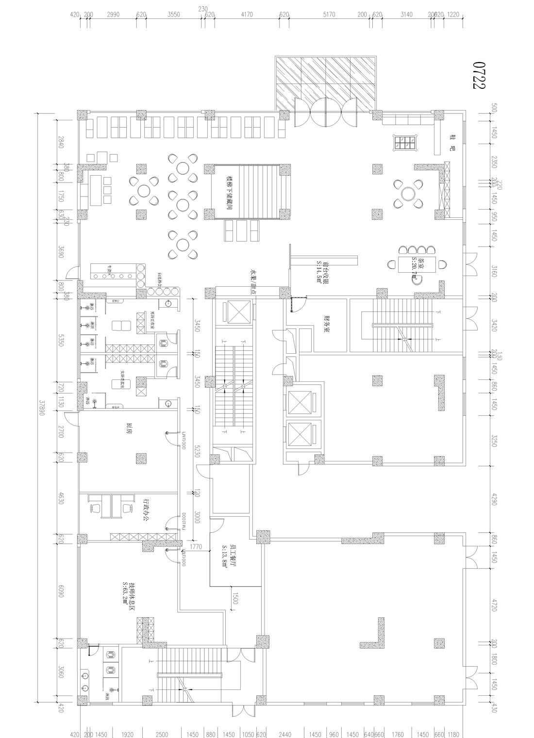
唐艺养生

2022/03/25 00:00:00
查看完整案例
微信扫一扫
收藏
下载
唐艺养生-0
唐艺养生-1
唐艺养生-2
唐艺养生-3
唐艺养生-4
唐艺养生-5
唐艺养生-6
唐艺养生-7
唐艺养生-8
南京喵熊网络科技有限公司 苏ICP备18050492号-4知末 © 2018—2020 . All photos and trademark graphics are copyrighted by their owners.增值电信业务经营许可证(ICP)苏B2-20201444苏公网安备 32011302321234号
客服
消息
收藏
下载
最近