知末
知末
创作上传
VIP
收藏下载
登录 | 注册有礼
知末案例   /   家装空间   /   平层   /   现代平层

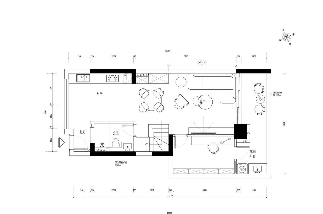
君华御府

2021/12/19 00:00:00
查看完整案例
微信扫一扫
收藏
下载
君华御府-0
君华御府-1
君华御府-2
君华御府-3
君华御府-4
君华御府-5
君华御府-6
君华御府-7
南京喵熊网络科技有限公司 苏ICP备18050492号-4知末 © 2018—2020 . All photos and trademark graphics are copyrighted by their owners.增值电信业务经营许可证(ICP)苏B2-20201444苏公网安备 32011302321234号
客服
消息
收藏
下载
最近