知末
知末
创作上传
VIP
收藏下载
登录 | 注册有礼
知末案例   /   娱乐空间   /   养生馆

广州锦尚养生中心丨中国广州

2022/11/28 00:00:00
查看完整案例
微信扫一扫
收藏
下载
广州锦尚养生中心丨中国广州-0
项目位于广州天河区,以经营中医艾灸养生服务为主。
广州锦尚养生中心丨中国广州-2
广州锦尚养生中心丨中国广州-3
广州锦尚养生中心丨中国广州-4
设计师尝试从东方传统文化里提取美学元素;
广州锦尚养生中心丨中国广州-6
广州锦尚养生中心丨中国广州-7
广州锦尚养生中心丨中国广州-8
广州锦尚养生中心丨中国广州-9
广州锦尚养生中心丨中国广州-10
外立面推演过程
广州锦尚养生中心丨中国广州-12
外立面方案效果
广州锦尚养生中心丨中国广州-14
广州锦尚养生中心丨中国广州-15
广州锦尚养生中心丨中国广州-16
广州锦尚养生中心丨中国广州-17
广州锦尚养生中心丨中国广州-18
前厅服务区希望通过建筑的处理手法增加空间延伸感;
广州锦尚养生中心丨中国广州-20
广州锦尚养生中心丨中国广州-21
广州锦尚养生中心丨中国广州-22
广州锦尚养生中心丨中国广州-23
以孔明灯延伸的发光造型,处理结构梁体;
广州锦尚养生中心丨中国广州-25
广州锦尚养生中心丨中国广州-26
接待区
广州锦尚养生中心丨中国广州-28
理疗室
广州锦尚养生中心丨中国广州-30
广州锦尚养生中心丨中国广州-31
广州锦尚养生中心丨中国广州-32
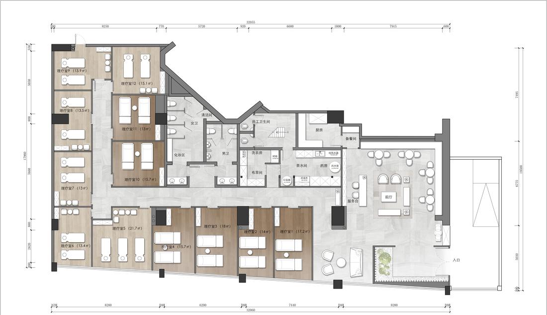
现场条件
广州锦尚养生中心丨中国广州-34
项目平面布置方案
南京喵熊网络科技有限公司 苏ICP备18050492号-4知末 © 2018—2020 . All photos and trademark graphics are copyrighted by their owners.增值电信业务经营许可证(ICP)苏B2-20201444苏公网安备 32011302321234号
客服
消息
收藏
下载
最近