查看完整案例


收藏

下载
Casa Jardin Escandon位于墨西哥城Escandón区Agricultura大街19号。项目是一个多功能综合体。过去几年,Escandón繁荣发展,充满年轻活力。在这里,艺术装饰风的建筑和地标性的当代大楼和谐共存。
CASA JARDIN ESCANDÓN, is located at 19 Agricultura St. in the Escandón neighborhood of Mexico City. The housing development is a mixed-use complex. The Escandón neighborhood had a recent boom in the past years, with a fresh and youthful vibe. Art deco buildings coexist with landmark facades and new contemporary buildings.
▼建筑外观,external view of the building
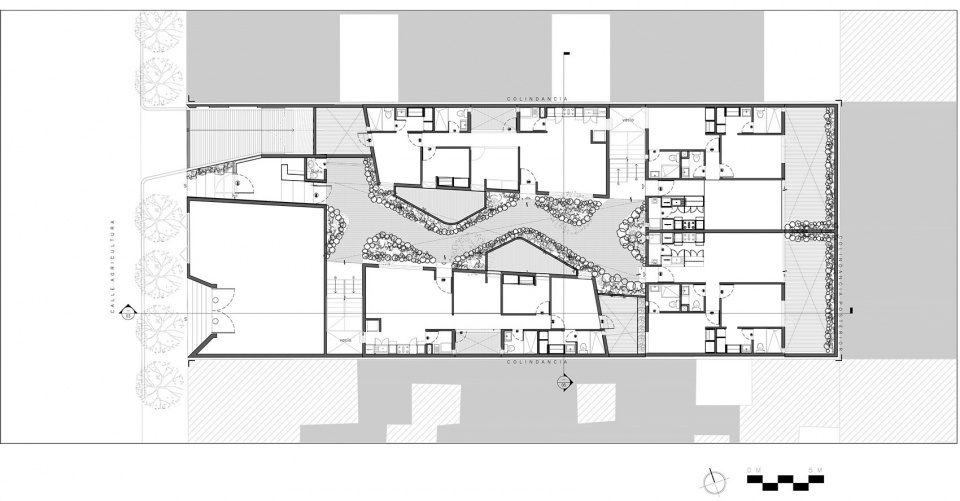
项目布局上,后部的露台让建筑与基地边缘脱离,所有居住单元朝向中央庭院设置,保证每户人家都可以享受自然采光和对流通风。综合体总共包含14个居住单元,底层的4户为公寓式房间,上部为10户联排式三层住宅。
The project is developed to live towards the interior of the complex through a central courtyard and a rear patio separated from the back boundary, allowing all residential units to have natural light and cross ventilation. The complex consists of 14 units, with 4 apartment-style units on the ground floor, and 10 three-level townhouse-style units located above.
▼顶视图,建筑有住宅单元和中央花园组成,top view of the building composed of residential units and a central garden
▼鸟瞰,aerial view
项目从周边的传统建筑中获得灵感,表面采用galarza石材。沿街立面呈三角山墙形,混凝土板与石材形成鲜明对比。一层凸出的混凝土板形成阳台,在室内居住空间和室外社交空间中建立连接。另一方面,朝向中央庭院的内立面采用不同的建筑语言,大小各异的窗户、开口和山墙顶共同创造出了综合体简洁多变、独特而充满趣味性的外观。
The volume, covered in galarza stone, embraces the traditional inspirations of the neighborhood. With a gabled facade facing the street, the concrete slabs stand out. In turn, the first level stands out from its alignment to generate balconies, allowing a more direct relationship with the outdoor social spaces of the residential interior. On the other hand, the interior facades towards the central courtyard speak a different language, where a game of diverse windows, openings, and gabled roofs are generated to create a simple, dynamic, fun, and ingenious form of the complex.
▼建筑立面,由石材组成,building facade made of stone
中央庭院中种有许多本地植物,适应当地气候,未来不需要额外养护。庭院被设计成了一个用来冥想和自省的空间,室内露台成为住宅与城市之间的过渡,与综合体外纷扰的生活相分离。
The central courtyard of the project houses a variety of native plants and species that are conducive to the local climate, negating the need for extensive maintenance in the future. The courtyard area is designed for contemplation and reflection, where access from the residential complex begins a gradual transition towards an interior patio that serves as a central disconnection from the hustle and bustle of life outside of the complex.
▼中央庭院,种有多种当地植物,central courtyard with various native plants
中央庭院和其中丰富的植物花卉形成了一个适合冥想和自省的空间。该内部花园是设计中最为重要的元素,建筑师致力于创造一个真正的魔法空间,为建筑带来永恒。
The space invites reflection and contemplation, inspired by the central garden and its various species of plants and flowers. This interior garden is the most important element of the design proposal, and the architects focused on developing a truly magical space where architecture meets permanence and contemplation.
▼适合冥想的空间,space for contemplation
▼围绕中央花园的走廊,corridors around the central garden
设计仔细考量了面朝中央庭院的阳台的间距、朝向和布局,在住宅和公用的“秘密花园”之间创制造出了一片不连续的、私密而平和的互动空间。这一过程被重复利用在了屋顶花园的设计上,花园中种有多种本地的喜阳植物和多叶植物,在保证私密性的同时,为人们提供看向天空的视野。
By carefully taking the distance, orientation, and arrangement of the balconies facing the central courtyard into consideration, the result delivers a discreet, private, and peaceful interaction between residents and their shared “secret garden”. The process was replicated for the rooftop gardens, all featuring native sun vegetation, a variety of plants, and foliage arranged to provide residences with both privacy and openness, with skyward views.
▼朝向中央花园的丰富开窗,diverse windows toward the central garden
▼屋顶花园,roof garden
▼开窗细部,details of the openings
综合体的主入口如同一个洞窟,山墙顶给人带来空间是从石块中雕刻而出的感觉。石材入口成为街道和建筑室内的过渡空间,人们在这里可以欣赏被框住的灯光和景观,将城市环境留在身后。
Main access to the complex was designed as a cave, with a gabled ceiling that gives the perception of having been carved out of the stone volume. The opening serves as a transitional space between the street and the interior of the complex, where visitors are received with views framed by light, the landscape, and a carved stone entrance that whisk them away from the cityscape behind them.
▼洞窟般的入口,cave-like entrance
▼住宅室内,interior of the residence
▼从住宅看向庭院,view to the courtyard from the residence
项目以实际空间显示了建筑可以同时与建成环境和自然环境相连接,提供更加完善且和谐的生活体验。
The project is a physical manifestation of the idea that architecture can connect with both the built environment and the natural environment, generating great benefits towards offering a more complete and harmonious life experience.
▼夜景,night view
▼一层平面图,ground floor plan
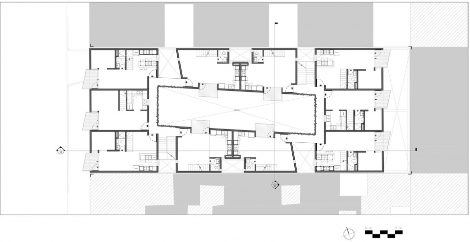
▼二层平面图,first floor plan
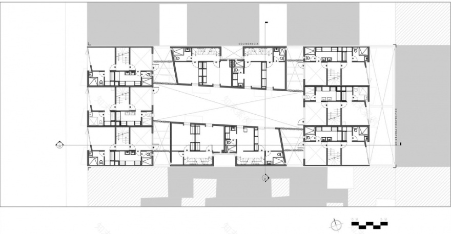
▼三层平面图,second floor plan
▼四层平面图,third floor plan
▼屋顶平面图,roof plan
▼剖面图,section
Architect: CPDA Arquitectos
General contractor: Mocaa Arquitectos
Landscape Design: Taller Entorno Paisaje
Area: 2,300 sq. meters
Completion date: 2020
Photographer: Jaime Navarro
客服
消息
收藏
下载
最近


























