查看完整案例


收藏

下载
这是一座位于维尔纽斯老城区Užupis的双层公寓。保留结构墙的必然性和以罗马斗兽场为灵感的拱形元素成为了项目的思想轴心。设计团队决定对此加以强调,并围绕着石墙来建造公共和封闭的空间。同时,为了与既有石墙保持平衡,建筑亦选择了具有永恒特征的材料和形态。
This is a two-storey family apartment in Vilnius Old Town, Užupis. The inevitability of the inherited structural wall and the associative arched image of the colosseum became the ideological axis of the project. It was decided to highlight it and build a house around a stone wall separating the house into public and enclosed spaces. Timeless materials and shapes were used to create an equivalent counterweight to the main element, the stone wall.
▼项目概览,general view
项目的挑战为设计带来了灵感:空间中巨大的结构墙限制了人的行动,并将空间划分成了数个更小的单位。若能够妥善解决这面墙的问题,那么这个项目自然也就能够顺利地进行。
The main inspiration was in the challenge – a huge structural wall in the middle of the space that limited our actions and divided the space into small rooms. We knew that if we solved the wall issue properly, the project would be a success.
▼概念示意,design concept
设计者将结构墙和墙上的开口作为整个项目的入手点。主要的起居区包括开放式的厨房、客厅、餐厅和家庭办公室;第二个区域作为儿童休闲区,带有卧室和浴室——两个区域通过沿门厅延伸的石墙和内置的储物空间而得到划分。主起居区可以进入开阔的阳台,后者享有维尔纽斯巴洛克教堂的视野。结构墙亦成为了旧城区与公寓之间的象征与连接要素。
The inherited structural wall in the middle of the space and the associative openings in it became the axis of project concept.
Main living area with open plan kitchen, living, dining spaces, home office, and second area – is a children’s recreation with bedrooms and bath. Stone wall and built in storage along the hallway is a dividing line between two zones. From the main living space there is a possibility to access a large terrace with a view of Vilnius baroque churches (unfortunately not recorded in the photos). Structural wall became a symbol and a link between the old town and apartment.
▼既有的结构墙和墙上的开口成为整个项目的入手点
The inherited structural wall in the middle of the space and the associative openings in it became the axis of project concept
▼楼梯细节,staircase
拱形元素是空间中最重要的意象,它既是项目的主要转折点,又是住宅中极为醒目的标志性的存在。拱形结构的关联性成为了设计的一个主要概念——就像是罗马斗兽场建筑中的一个片段,拱形的主题同样延续至更为细节的部位,例如特别定制的门把手、餐桌以及其他融合了曲线形式的家具。
The main motif is the arch. It became a main turning point in the project, a particularly striking motif and a sign for uniqueness. The associativity of the arch became the main idea – like a fragment of the colosseum. The arch motif was repeated in the smaller elements as well – e.g. specially designed handles, a specially designed dining table, curved form is also found in other furniture.
▼拱形元素成为设计的主题
the arch as the main motif of the project
▼拱形元素延伸至门把手等细节部位
the arch motif was repeated in the smaller elements such as the handles
另外一个重要因素是材料。天然的石灰石被用于强调拱形的概念,并获得了非常理想的效果。其他位置的材料选择均以不干扰既有墙体为原则,目的是保持设计理念的纯粹性,突出墙壁在建筑中的地位。鉴于空间的复杂性和元素的多样性,以白色为主的用色方案也就自然而然地成为了最佳的选择。
Another important element is materials. Natural travertine stone was used to reinforce the concept, and its role in this project is very pronounced and successful. Other solutions seek not to interfere with a key element – the wall. The aim was to keep the idea clean and to highlight the concept of the wall, for that reason other competitive materials were abandoned. The dominant white color was chosen naturally due to the complexity of the space and the number of elements.
▼材料细节,material details
▼厨房,kitchen
楼梯的设置和构造充分考虑了功能性和空间的有限,它被分为厚重和轻盈的两个部分,厚重的部分呼应了餐桌和厨房台面,轻盈的部分则是为了减少压迫感并节省更多空间。所有这些要素都与作为主体的石墙构成了联系,犹如石墙叙事的一部分延伸。
Function and a small space had the greatest influence on the configuration and construction of the stairs. The stairs are divided into two parts – monumental and light. The monumental part has a connection with other objects – a dining table, console, etc. Upper stairs part was designed to elevate lightness and to save space. All of these elements create a link with the main stone wall. They are like a part of a stone wall narrative.
▼楼梯细节,staircase detailed view
▼阁楼层,the attic
▼卧室,bedroom
▼浴室,bathroom
▼剖面透视,sectional perspective
▼轴测分解图,axon exploded
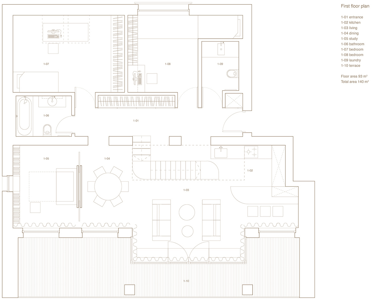
▼一层平面图,first floor plan
▼二层平面图,second floor plan
Authors: 2XJ architects
Team: Jokūbas Jurgelis, Martina Kriaučiūnienė, Jūratė Volkavičiūtė
Location: Vilnius, Lithuania
Year: 2020
Area: 140m2
Photography by Darius Petrulaitis
客服
消息
收藏
下载
最近




















