查看完整案例

收藏

下载
對于他來說最大的挑戰并不是改造重建,而是通過強調核心結構表現出空間設計的本質。
"捉影"即是粵語中的"竹影",竹是禪詩神韻,影是對光的追逐。
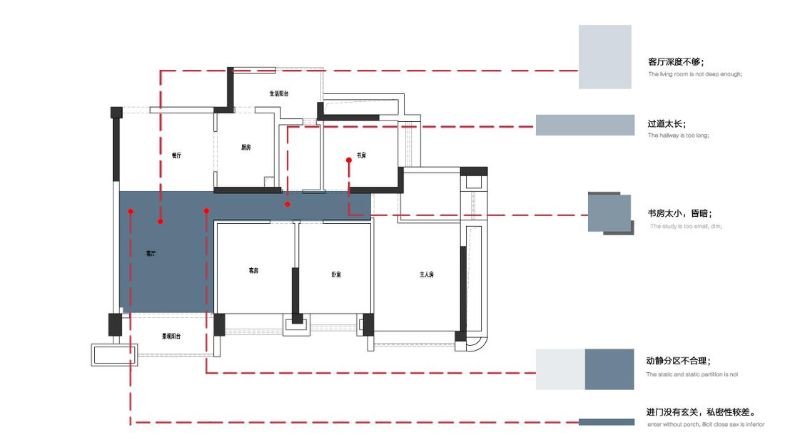
原建弊端
一:客廳深度不夠;二:過道太長;三:書房太小,昏暗;四:動靜分區不合理;五:進門沒有玄關,私密性較差。
魔力變換
一:用玻璃半分隔客廳與書房達到公用空間的效果,打開了空間。二:書房沒有了實墻間隔,令過長的過道減短了一半。三:空間打開同時光也照亮整個書房。四:公共空間與臥室有較明顯的分區。五:運用簡易禪意的竹席巧妙的把屏風的作用完成,私密有了。
Bill Zhu(诸立标)利用佛山工匠傳統文化,這樣有型、無形的物質資源延續在本案當中。"卯榫結構"體現了他對空間設計領域以外的追求與執著。
他在用"借景"發揮出書房該有的文化性同時,再用玻璃巧妙擺脫原有建筑結構對于自然光的束縛。
主人房也是設計的亮點之一,他利用遠山的畫布和簡潔的衣柜門讓空間得到足夠的延伸。
他用竹簾替代了傳統的百葉簾正是他對光影追逐的執著。
他特意為孩子設計的書桌讓孩子愛上讀書,既簡潔又實用。
施工進行中,敬請期待。。。
客服
消息
收藏
下载
最近



















