查看完整案例

收藏

下载

翻译
Architects:Richard Cole Architecture
Area :1041 m²
Year :2020
Photographs :Simon Wood
Landscape Architecture :Trish Dobson Landscape Architect
Structural Engineering :ACOR Consultants
Country : Australia
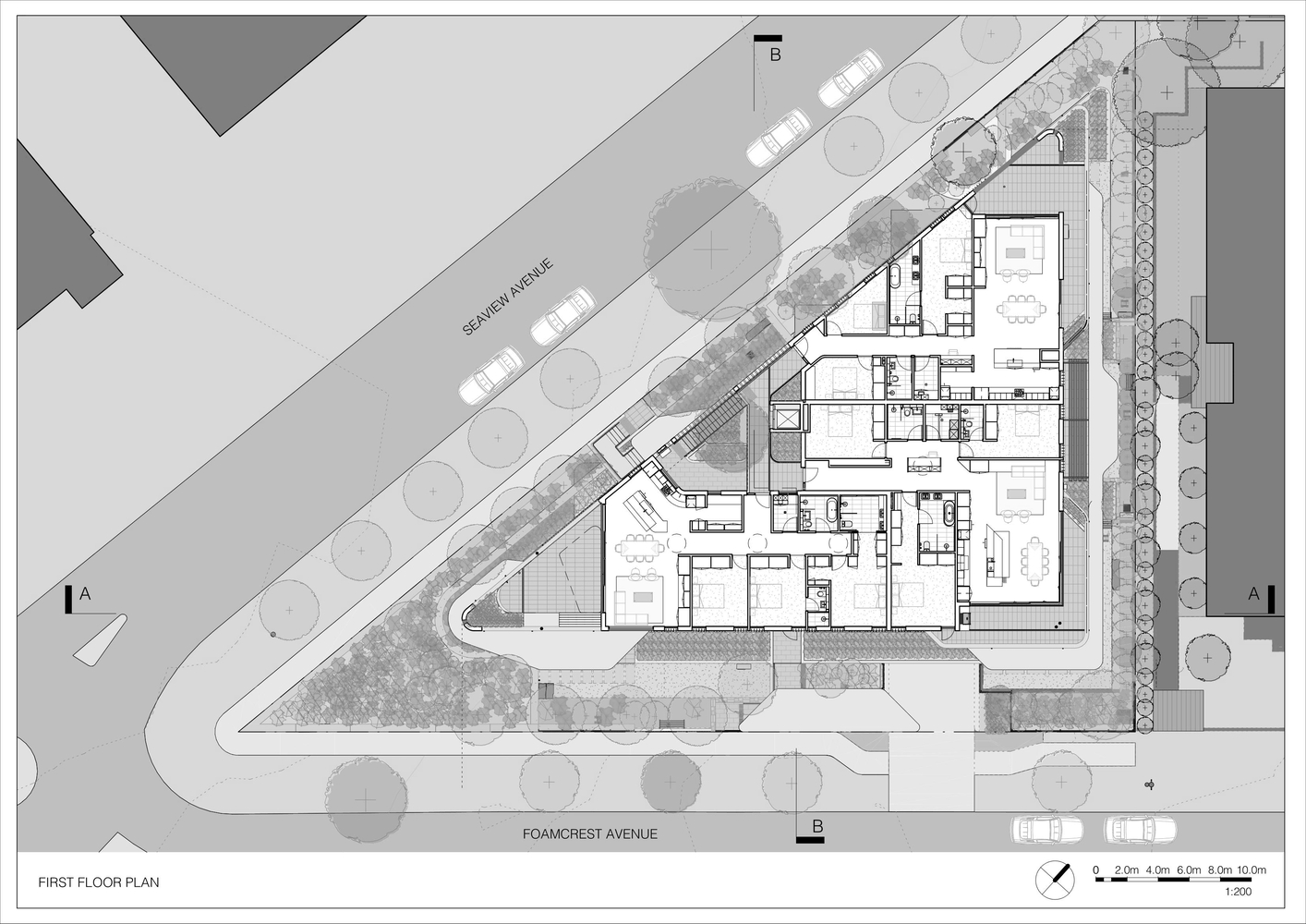
On a difficult triangular site in the coastal suburb of Newport on the Northern Beaches of Sydney, Foamcrest Apartments is a form generated from the unique site. A composition of glazed bricks, off form concrete and sandstone, and materials selected for their durability and appropriateness for the ocean side location, the seven apartments are 100% adaptable and differentiated by unique plans. With two prominent street fronts and a central lobby that is open to the sky, the design carefully balances solar access, privacy, and outlook. The form emphasizes a low profiled horizontality that is generally well below the height limit. The character of the building provides a fresh and contemporary contribution to the locality.
The unique planning, level of craftsmanship, detail, and the use of high-quality materials demonstrate a level of commitment to an architectural solution by the developer which is unusual in a small-scale multi- residential speculative development, particularly on the Northern Beaches. It is hoped that this new benchmark will improve the quality of similar development in the area. The horizontality of the overall form distinguishes the project from typical multi-residential profiles, establishing a unique dialogue with the public realm.
The apartment building confidently addresses the adjacent roundabout at the apex of the site, providing a memorable place-marker corner with its tight radius and single slot opening. The form emphasizes a low profiled horizontality that is generally well below the height limit. The character of the building provides a fresh, contemporary, and appropriate contribution to the locality.
The site slopes down to the north, providing a wide northern aspect and enabling a sense of protection from the busy southern roundabout. The unconventional profile is translated to the seven apartments, which are differentiated by unique plans, each a response to its location within the overall site. Subsequently, this provides a level of choice and identity unusual in multi-residential developments. The planning transforms problematic triangular corners into opportunities to open onto multiple aspects, with the benefit of greater solar access and cross ventilation. Five of the seven apartments face due north.
The common lobby is eroded into the form and open to the sky, providing a green center and increased opportunity for cross ventilation. The lobby has a delicate vertical detailing directing eyes to the framed view of the sky. Splashes of color differentiate it from the robust exterior. A Western screen of vertical sandstone blades provides dramatic afternoon patterns of light. Feature tree planting including locally endemic Cabbage Tree Palm groves provide attractive vistas and enhance the character of the locality from the prominent southern intersection, also providing links to the existing Newport village planting theme.
With a nod to the rounded forms and aqueous colors of the proximate ocean-worn coastline, the building celebrates the plastic qualities of concrete and the capabilities of the shimmering pale green bricks. Full-height internal doors and external openings increase the sense of space. Operable vertical external louvers to windows allow residents to modulate the level of privacy and the entry of light, air, and sound. Australian hardwood timber ceilings and floors provide warmth and texture.
▼项目更多图片
客服
消息
收藏
下载
最近




































