查看完整案例


收藏

下载
本项目是一个女装品牌体验店的咖啡区,位于一幢三层清水混凝土建筑一楼的一角,透过落地窗能看到外面一片墨西哥鼠尾草和香茅正在肆意生长。
This project, located in a corner of the first floor of a three-story fair-faced concrete building, is a coffee area for a women’s clothing brand experience store. The floor-to-ceiling windows can face a patch of Mexican sage and lemongrass that are growing unrestrainedly.
▼项目外观,appearance of the project
▼咖啡厅主入口,entrance of the cafe
▼种满墨西哥鼠尾草和香茅的花园,garden with Mexican sage and lemongrass
设计的初衷是不做太多的装饰,新的设计元素与原建筑之间有机的共生,保留了原建筑清水混凝土的质感及结构,并没有做太多的改动和添加,新做的地面用了一种类似水泥沙浆质感的水磨石,使地面与原来建筑的混凝土颜色接近,整体以灰色、金属色、浅木色为基调,希望创造一个简单开放的空间、内外融合的环境和享受咖啡的舒适场所。
The original intention of the design is not to do too much decoration, with the organic symbiosis between the new design elements and the original building, the texture and structure of the original clear concrete is retained without too many changes and additions. The new floor is made of terrazzo, which is similar to the texture of cement mortar, so that the color of the floor is close to the concrete of the original building. The overall color is mainly gray, metallic and light wood, hoping to create a simple and open space, an environment that blends inside and outside, and a comfortable place to enjoy coffee.
▼项目室内概览,overview of the cafe
▼整体以灰色、金属色、浅木色为基调,The overall color is mainly gray, metallic and light wood
▼新的设计元素与原建筑之间有机的共生,the organic symbiosis between the new design elements and the original building
一个直径接近四米的大圆桌位于咖啡区域的中心,喝咖啡的人们围合而坐,相见而欢。斜放的操作台和圆桌形成的操作区域,即独立又开放,咖啡师在操作时与顾客也能够很方便的互动。
With a large round table with a diameter of nearly four meters located in the center of the coffee area, making coffee drinkers sit around and cheerful. The operation area formed by the slanted console and the round table is independent and open, ensuring that the barista can easily interact with the customers while preparing coffee.
▼咖啡区域中心的大圆桌,a large round table located in the center of the coffee area
▼窗边与圆桌之间的座位区,siting area by the window side next to the round table
▼独立又开放的多种座位形式,independent and open seating forms
▼大圆桌与座椅细部,details of the large round table and the seat
大圆桌上方环形软屏滚动播放的手绘插画,远端墙上挂的艺术家画作,给整个空间增添了一份动感及色彩。
Both the hand-painted illustrations scrolling on the square ring-shaped soft screen on the large round table and the artist’s paintings hanging on the far wall add a sense of motion and color to the whole space.
▼滚动播放的手绘插画与远端墙上挂的艺术家画作, the scrolling hand-painted illustrations and the artist’s paintings
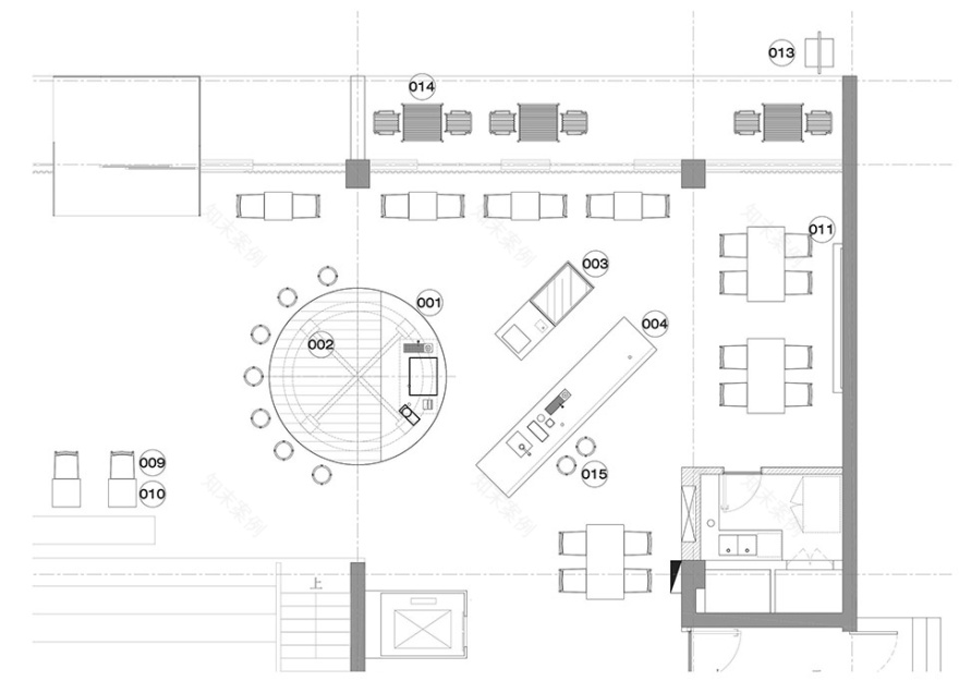
▼平面图,plan
项目名称:broadcast-bo体验店咖啡区
项目地点:中国 上海
设计公司:A3 VISION
创意总监:王志峰
设计团队:范进、刘超
主要材料:不锈钢、橡木、水磨石
项目年份:2020.6
项目面积:135平方米
建筑设计:formless design
摄影公司:@是然建筑摄影
Project Name : Broadcast-bo Coffee Experience Area
Project Location: Shanghai, China
designer office: A3 VISION
Director: Zhifeng Wang
Design Team: Jin Fan 、 Chao Liu
Material list: Main materials: stainless steel, oak, terrazzo
Project Year: 2020.6
Project Area: 135 ㎡
Architectural design: formless design
Photographer: @schranimage
客服
消息
收藏
下载
最近
















