查看完整案例


收藏

下载
名古屋 9h 酒店于 2020 年 2 月开业,距名古屋站仅两分钟路程。
Opened in February 2020, 9h Nagoya is located only 2 min away from Nagoya station.
▼项目外观,external view of the project
设计目标是创造一个让人可以放松下来、好好休息的环境。尤其是顶层空间,在繁忙的城市与狭小的胶囊酒店中形成了一种开放感。
Our aim was to design the place where people can relax and rest well. Especially the penthouse was made to get some feeling of open space in contrast to the urban and limited spaced capsule-hotel building.
▼建筑顶层设有开放露台,penthouse with open terrace
▼露台为城市生活提供一种开放感,terrace providing a feeling of openness in the city
一层设有知名的 Glitch 咖啡餐厅,这是该品牌在名古屋的第一家分店。
On the ground floor, we were commissioned to design renowned coffee and roasters Glitch_coffee’s first store in Nagoya.
▼入口,entrance
▼室外座位,outdoor seatings
▼户外座椅与植物,outdoor seatings and plants
▼一层咖啡餐厅,cafe and roaster on the ground floor
▼咖啡厅细部,details of the cafe
设计师希望项目不仅为 9h 的住客所用,也可以为社区提供一个温馨的场所。
Not only for the people staying at nine hours, we aimed to design a welcoming space for the community as well.
▼顶层公共空间,public space on the top floor
▼提供社区营造的场所,provide a space for the community
9h 的创立基于酒店住宿最直观的理念:“一天的重启需要一些基本行动,包括一小时沐浴、七小时睡眠和一小时梳妆,共九个小时。”为旅客提供了独一无二的理想城市住宿体验。
9h nine hours, based on the most straightforward concept of staying in a hotel: “Resetting your day, from one day to the next, needs three basic actions, take a shower(1h), sleep(7h), and get yourself dressed(1h)=9h”, ninehours offers ideally simple urban stay unlike any other in the world.
▼住宿胶囊,capsules for stay
▼电梯间,elevator hall
▼行李寄存处,locker room
▼盥洗室,wash room
▼标识细部,details of the signages
▼夜景,night view
▼一层平面图,first floor plan
▼屋顶平面图,penthouse plan
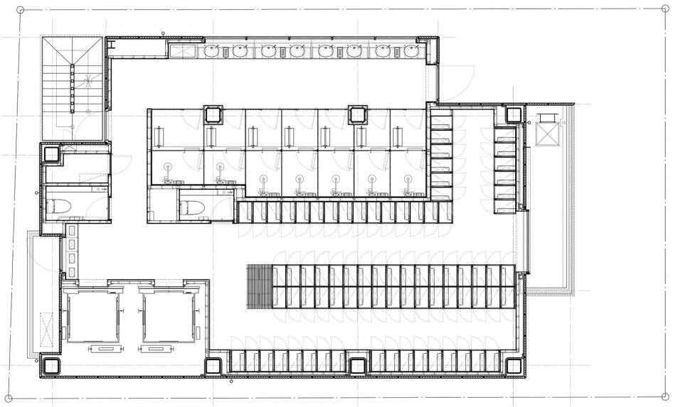
▼住宿层平面图,plan of the capsule hotel
▼盥洗室平面图,wash room plan
Project Name: 9h nine hours Nagoya
Design Company: Keiji Ashizawa Design
Function: Hotel
Location: Nagoya
Completion: 2020 年
Architects: Keiji Ashizawa, Kentaro Yamaguchi
Architectural Design: GKK ARCHITECTS & ENGINEERS Co.,LTD.
Construction: Shiohama Industry Corporation
Photographer: Nakasa&Partners
Building Area: 1F136.95m2, 9F42.81m2
Design Period:2018.11-2019.03
Construction Period:2019.06-2020.02
Exterior Materials: 外壁 (押出成形セメント板:アイカテック建材/メース)
Interior Materials
フローリング:マルホン/ヨーロピアンオーク オイルホワイトウォッシュ
1F 床:コンクリート洗出し
床シート:ADVAN/BOLON
水廻りタイル:Maristo/one、平田タイル/Xtreme
壁:AEP 塗装、KMEW/SOLIDO、フレキシブルボード
天井:AEP 塗装、デッキ表し、フレキシブルボード
Furniture and Illumination
1F スツール:karimoku new standard
9F ソファ:karimoku case study
客服
消息
收藏
下载
最近































